















































































Koselig og sjarmerende 7-roms enebolig i barnevennlig område med god planløsning. Strålende utsikt!
Prisantydning
Størrelse (BRA)
Internt bruksareal (BRA-I)
Boligtype
Eieform
Antall etasjer
- Primærrom
- 183 m²
- Bruttoareal
- 186 m²
- Tomteareal
- 869 m²
- Byggeår
- 2008
- Kommunale avgifter
- 25 592 kr
- Tomtetype
- Eiet tomt
Romtyper
Soverom
Baderom
Stue
Bod
Kjøkken
Om boligen
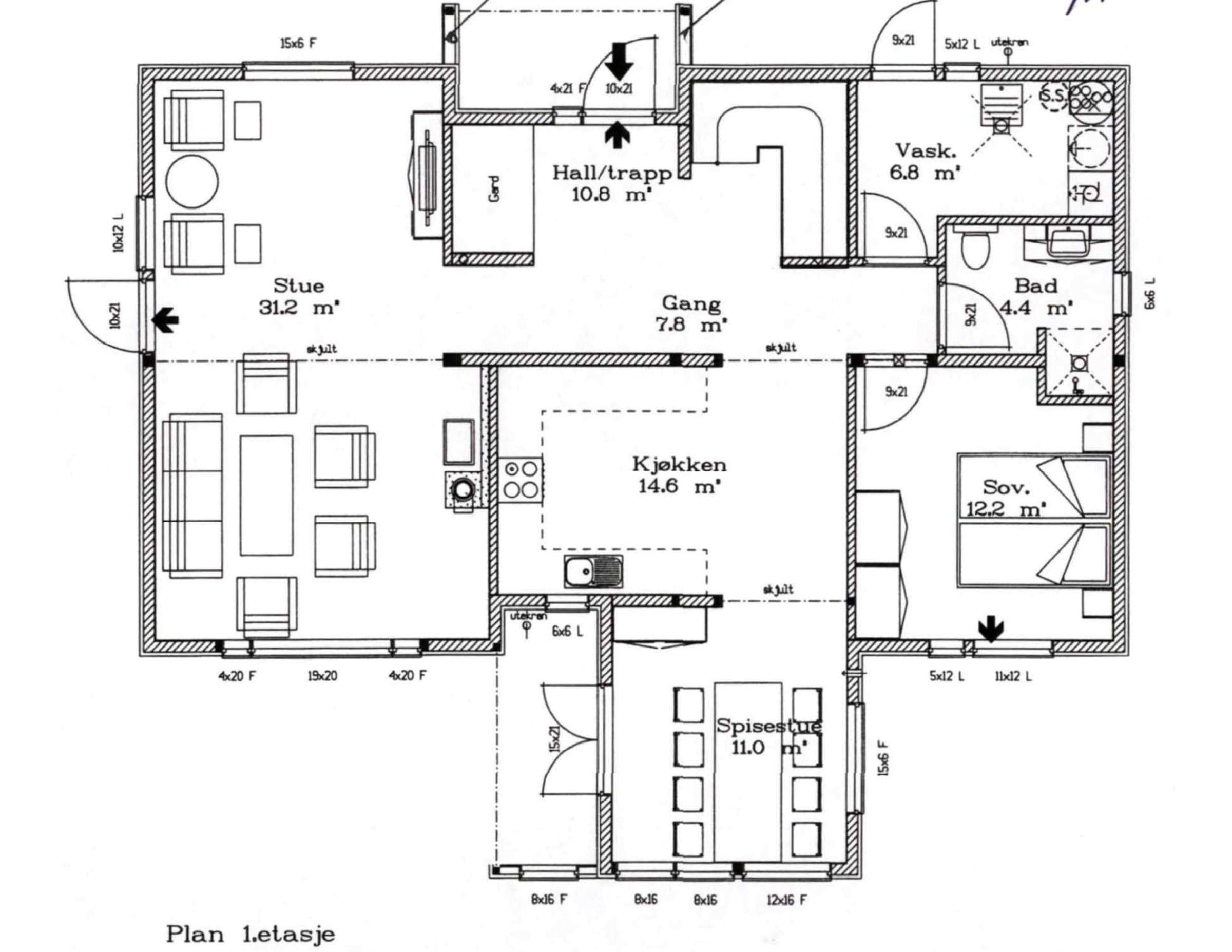
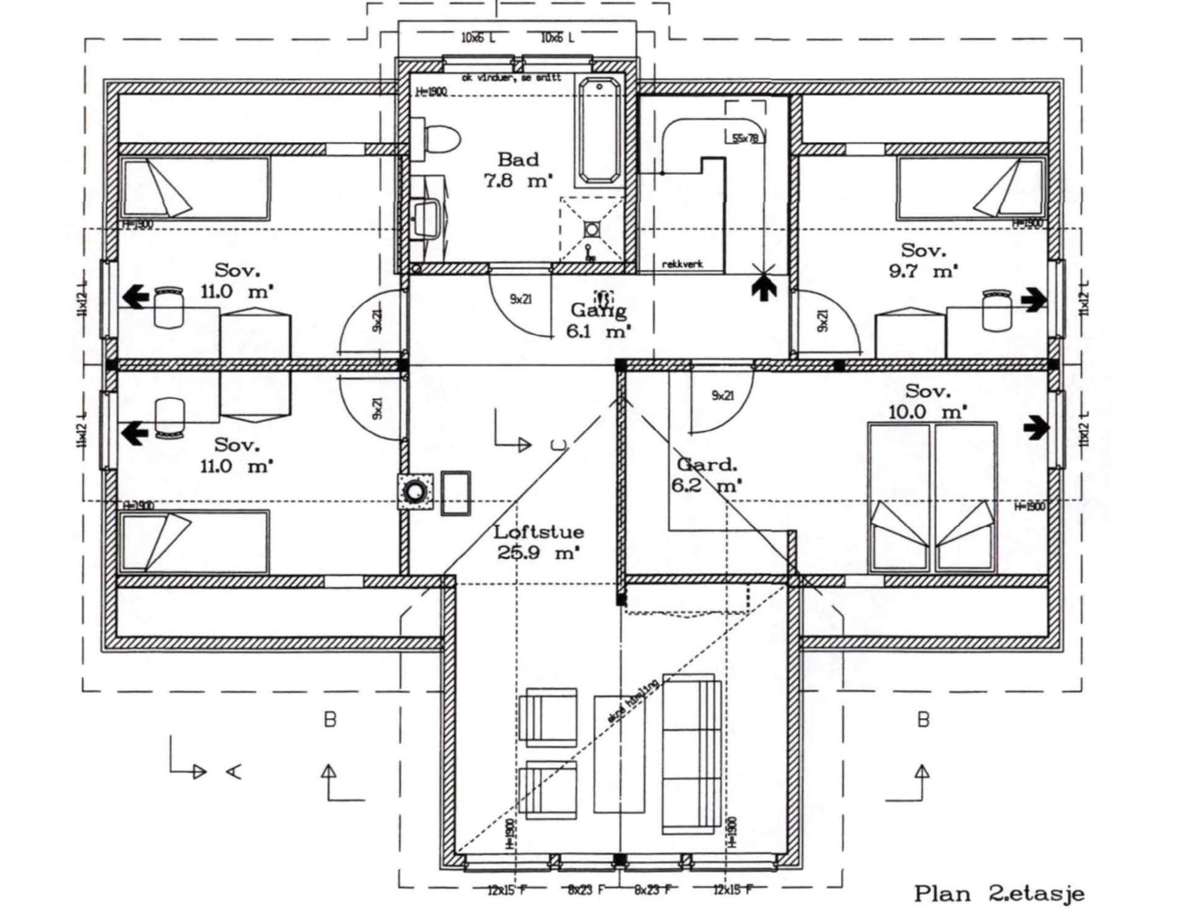
Velkommen til Sjubbehaugen 2! Velholdt og innholdsrik enebolig på Røvær med sentral, men tilbaketrukket beliggenhet. Sjubbehaugen er et lite område på øya som består av 4 eneboliger. 1. etasje: Entrè, eget vaskerom, stort og flott kjøkken med egen spisestue. Lys og åpen stue, baderom og soverom. Store deler av 1. etasje er omringet av flott, solrik terrasse som enkelt kan innredes i ulike soner. Fantastisk utsikt over havet! 2. etasje: Lys og fin loftstue, baderom og 4 gode soverom. 2 utvendige boder.
Beliggenhet
Røvær er en idyllisk øy vest for Haugesund. Det er et trygt og familievennlig område, hvor naboer gjerne kjenner hverandre og det er et godt sosialt fellesskap. Nabolaget gir et harmonisk og avslappet miljø, perfekt for de som ønsker å komme vekk fra byens støy og stress. Her kan en nyte en bilfri tilværelse i en rolig og tilbaketrukket atmosfære. Naturen her er nydelig og mangfoldig og har mange spennende steder å utforske for store og små. En kort spasertur vil gi deg tilgang til flotte muligheter for bading, turer og fisking. Høsten er også tid for hummerfiske her på Røvær. Røvær ligger med kun 25 minutter rutebåt fra sentrum av Haugesund som har mange avganger hver dag. Skole fra 1. - 10. klasse og barnehage er tilgjengelig innen en kort avstand. Ved skolen og barnehagen er det en fin lekeplass. Det er også en fotballbinge like ved. I Nærbutikken kan du handle dagligvarer. Post i butikk.
Eiendomsskatt og formuesverdi
Eiendomsskatt: kr 9 091 Formuesverdi Som primærbolig: kr 1 026 031
Omkostninger
11 900 kr (HELP boligkjøperforsikring (valgfritt)) 79 750 kr (Dokumentavgift) 500 kr (Tinglysing av pantedokument) 500 kr (Tinglysing av skjøte) --- 92 650 kr (Omkostninger totalt) --- 3 282 650 kr (Totalpris inkl. omkostninger) NB: Regnestykket forutsetter at det kun tinglyses én låneobligasjon og at eiendommen selges til prisantydning. Det tas forbehold om endringer i offentlige og private gebyrer. Selger er selv ansvarlig for følgende gebyr: 500 kr (Panterett med urådighet)
Matrikkelinformasjon
Kommunenr: 1106
Gårdsnr: 27
Bruksnr: 136
Festenr: 0
Seksjonsnr: 0
Trygg og profesjonell kjøpsprosess
- 1
Møt selger på visning
Du møter selger direkte på visning - den personen som vet hvor sola kommer først inn om morgenen og hvor de beste skiløypene ligger. Få all informasjon fra første hånd og still spørsmål direkte til den som kjenner boligen best.
- 2
Sikker budprosess med BankID
Legg inn bud enkelt og sikkert med BankID-verifisering. Du får SMS-varsler ved nye bud og kan følge budrunden i sanntid. Systemet er mer oversiktlig og lettere å bruke enn tradisjonelle meglersider.
- 3
Profesjonelt oppgjør og overtakelse
Oppgjørsselskap med konsesjon fra Finanstilsynet håndterer alle formelle aspekter. Kontrakt signeres digitalt med BankID, og overtakelsesprotokollen gjennomføres enkelt på telefon. Alt foregår i henhold til avhendingsloven.


Vurderer du å selge selv?
Her kan du sjekke hvordan Propr fungerer - helt uforpliktende.
Ring oss på 23 90 59 00 (9–16, ukedager), eller legg igjen ditt telefonnummer så ringer vi deg opp.
Aktuelt
Kundeservice
Chat: 9–19 på hverdager, 11–18 på søndager
Send e-post: post@propr.no
Ring oss: 23 90 59 00 (10–16, ukedager)