





























TOMASJORD / LUNHEIM
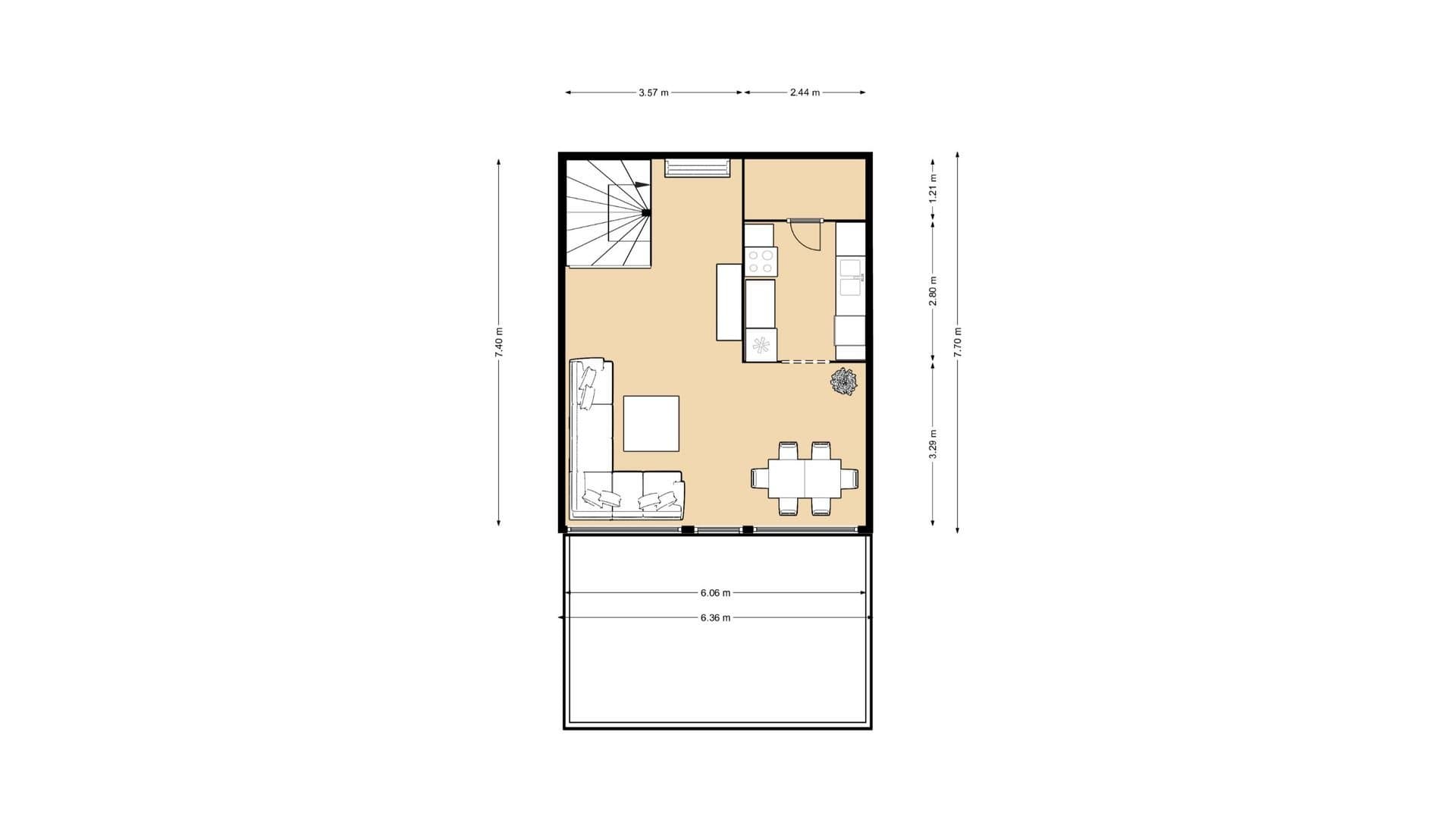
Lys og innbydende 4-roms andelsleilighet over to plan. Leiligheten er praktisk utformet, med lyse overflater og innredninger. Her får du 3 soverom, stort baderom, kjøkken med mye skapplass, romslig stue med tilgang til terrasse, vestvendt terrasse med panoramautsikt mot sundet, og flere boder. Parkering i garasjeanlegg med elbillader klar til bruk.
Eiendommen er beliggende i rolige og barnevennlige omgivelser på Lunheim. Terrasseblokken med boligdelen ligger høyt i terrenget på Lunheim og har utsikt mot Tromsøya, Tromsøysundet, deler av Kvaløya og Ringvassøya. Lunheim er en bydel i Tromsø som ligger på fastlandssiden mellom Kroken og Tomasjord. Området fremstår barnevennlig med flere lekeplasser og aktiviteter for barn og ungdom. Vestvendt beliggenhet med gode sol- og utsiktsforhold i et populært og etablert boområde. Gangavstand til matbutikk, skole, barnehage og bussholdeplass avganger til sentrum og UNN/UiT.
Om du ikke har mulighet til å komme på visning, holder vi gjerne privatvisning. Ta kontakt, så finner vi en tid. Parker på gjesteparkering i Rigelvegen hvis du kommer med bil til visning.
Komfyr og oppvaskmaskin på kjøkken kan følge med hvis kjøper ønsker det. Vi har tegnet boligselgerforsikring, og anbefaler også kjøper å tegne boligkjøperforsikring.
2 790 000 kr (Prisantydning) 879 376 kr (Andel av fellesgjeld) --- 3 669 376 kr (Pris inkl. fellesgjeld) Omkostninger 480 kr (Tinglysing av skjøte) 480 kr (Tinglysing av pantedokument) 7 900 kr (HELP boligkjøperforsikring (valgfritt)) --- 8 860 kr (Omkostninger totalt) --- 3 678 236 kr (Totalpris inkl. omkostninger) NB: Regnestykket forutsetter at det kun tinglyses én låneobligasjon og at eiendommen selges til prisantydning. Det tas forbehold om endringer i offentlige og private gebyrer. Selger er selv ansvarlig for følgende gebyr: 440 kr (Panterett med urådighet) 6 115 kr (Eierskiftegebyr)
Kommunenr: 5501
Gårdsnr: 15
Bruksnr: 740
Du møter selger direkte på visning - den personen som vet hvor sola kommer først inn om morgenen og hvor de beste skiløypene ligger. Få all informasjon fra første hånd og still spørsmål direkte til den som kjenner boligen best.
Legg inn bud enkelt og sikkert med BankID-verifisering. Du får SMS-varsler ved nye bud og kan følge budrunden i sanntid. Systemet er mer oversiktlig og lettere å bruke enn tradisjonelle meglersider.
Oppgjørsselskap med konsesjon fra Finanstilsynet håndterer alle formelle aspekter. Kontrakt signeres digitalt med BankID, og overtakelsesprotokollen gjennomføres enkelt på telefon. Alt foregår i henhold til avhendingsloven.


Her kan du sjekke hvordan Propr fungerer - helt uforpliktende.
Ring oss på 23 90 59 00 (9–16, ukedager), eller legg igjen ditt telefonnummer så ringer vi deg opp.
Chat: 9–19 på hverdager, 11–18 på søndager
Send e-post: post@propr.no
Ring oss: 23 90 59 00 (10–16, ukedager)