





















GJERDRUM / ASK
Helt ny toroms leilighet sentralt beliggende i Ask. Tidsriktig og moderne bygget med god takhøyde og store vindusflater. Moderne Unlock låsesystem om du ønsker trådløs åpning av dører/garasjeport. husleien inkluderer kommunnale avgt. vannbåren varme og service på bygget/heis etc. 150,- ekstra for de som innehar garasjeplass. Vestvendt balkong med ettermiddagssol. Hyggelig nabolag, kort vei til kollektivtransport, matbutikker, kafeer, biblotek, golfbane etc. Det følger med garasjeplass tilknyttet heis direkte til leiligheten. Innflytningsklar desember 2020
Få det beste fra det landlige og fra det urbane på ett og samme sted Ask sentrum ligger vakkert til i Gjerdrum kommune midt mellom Oslo og Gardermoen. Det tar kun 30 minutter med bil inn til hovedstaden, 20 minutter til Gardermoen og 20 minutter til Lillestrøm. Ask har god offentlig kommunikasjon via buss og flybuss, og det tar knappe 10 minutter med bil eller buss til Kløfta jernbanestasjon hvor det er pendlerparkering. Gjerdrum har et rikt og aktivt kulturliv, og på Ask finner du kulturskolen med tilbud om undervisning i dans, teater, visuell kunst, sang og musikk. Kulturhuset som ble bygd på dugnad av lokalbefolkningen ligger rett i nærheten av Kvartalet og ønsker deg velkommen til forestillinger, festivaler, dans, konserter, bibliotek, biljard og utstillinger. Ask er administrasjonssenteret for Gjerdrum kommune, og Herredshuset ligger vis à vis Kvartalet. Ask har et bredt butikktilbud med flere dagligvarebutikker, Vinmonopolet, spisesteder, bakeri og hyggelige nisjebutikker som interiørbutikken Hanne på Landet og kunst/håndverks butikken Nøstesjel I den gamle smia finner du den hjemmekoselige kaféen Hos Nabo'n som er et naturlig møtepunkt for store og små. Her kan du få kjøpt deg en rykende fersk caffé latte og slå av en prat med hyggelige sambygdinger. Spisestedet Nordvæst kan du bestille og betale baristakaffe og deilige vaffeler via Vipps. Nordvæst har alle rettigheter, og herfra kan du også bestille catering. Nærområdet Kort vei til Romeriksåsen med lysløyper tilknyttet Dnt´s turisthytter som også er betjent deler av året både for skientusiaster og markas turgåere.
Det er ingen forkjøpsrett på boligen. Om du ikke har mulighet til å komme på visning, holder jeg gjerne privatvisning. Ta kontakt, så finner vi en tid.
585 kr (Tinglysingsgebyr skjøte) 585 kr (Tinglysingsgebyr pantedokument) 74 750 kr (Dokumentavgift) 172 kr (Pantattest) 7 400 kr (HELP boligkjøperforsikring (valgfritt)) --- 83 492 kr (Omkostninger totalt) --- 3 073 492 kr (Totalpris inkl. omkostninger) NB: Regnestykket forutsetter at det kun tinglyses en låneobligasjon og at eiendommen selges til prisantydning. Det tas forbehold om endringer i offentlige og private gebyrer. Selger er selv ansvarlig for følgende gebyr: 585 kr (Tinglysingsgebyr sikringsobligasjon)
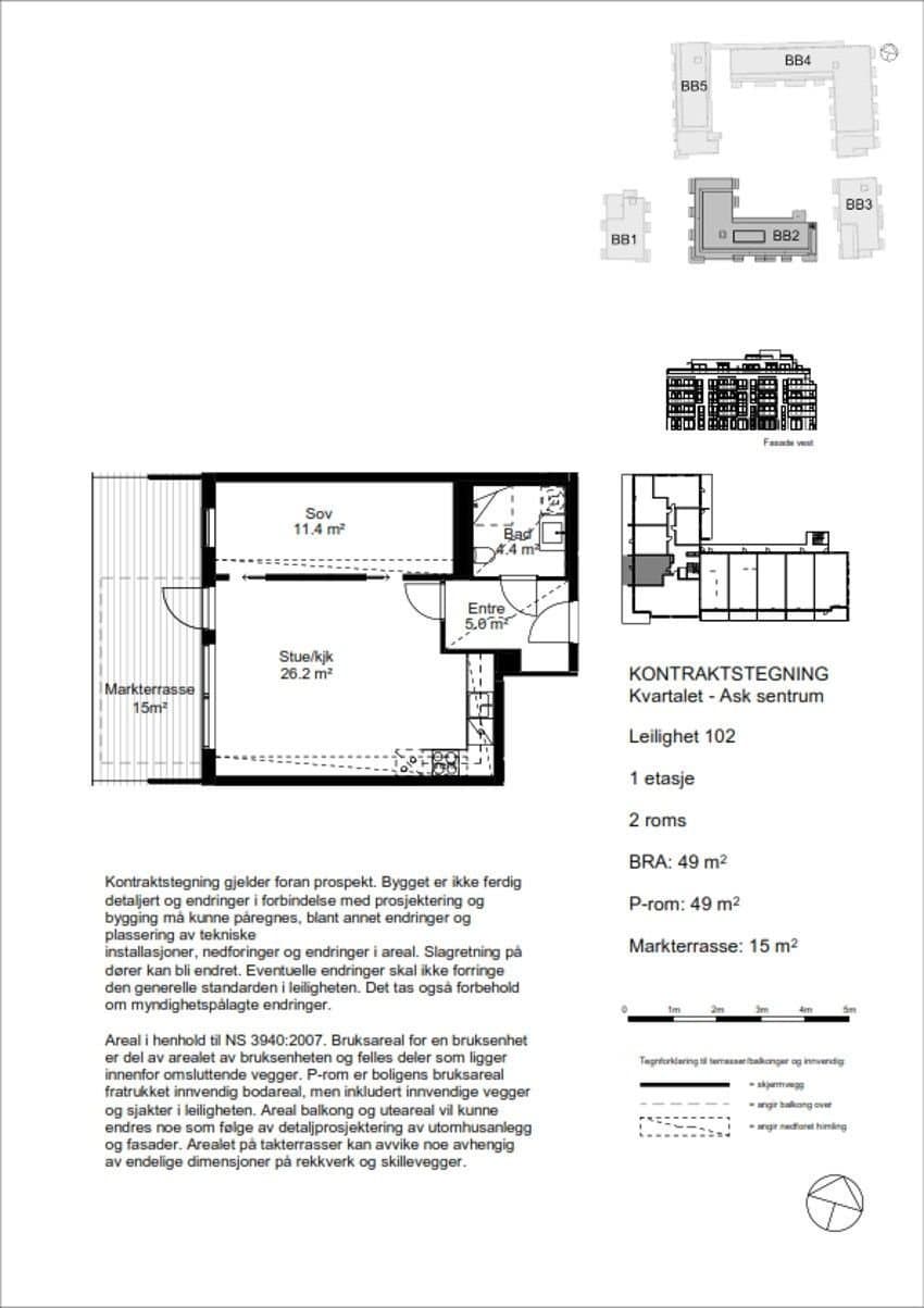
Kommunenr: 3032
Gårdsnr: 42
Bruksnr: 133
Seksjonsnr: 15
Du møter selger direkte på visning - den personen som vet hvor sola kommer først inn om morgenen og hvor de beste skiløypene ligger. Få all informasjon fra første hånd og still spørsmål direkte til den som kjenner boligen best.
Legg inn bud enkelt og sikkert med BankID-verifisering. Du får SMS-varsler ved nye bud og kan følge budrunden i sanntid. Systemet er mer oversiktlig og lettere å bruke enn tradisjonelle meglersider.
Oppgjørsselskap med konsesjon fra Finanstilsynet håndterer alle formelle aspekter. Kontrakt signeres digitalt med BankID, og overtakelsesprotokollen gjennomføres enkelt på telefon. Alt foregår i henhold til avhendingsloven.


Her kan du sjekke hvordan Propr fungerer - helt uforpliktende.
Ring oss på 23 90 59 00 (9–16, ukedager), eller legg igjen ditt telefonnummer så ringer vi deg opp.
Chat: 9–19 på hverdager, 11–18 på søndager
Send e-post: post@propr.no
Ring oss: 23 90 59 00 (10–16, ukedager)