































FURNES / Bjørkhol
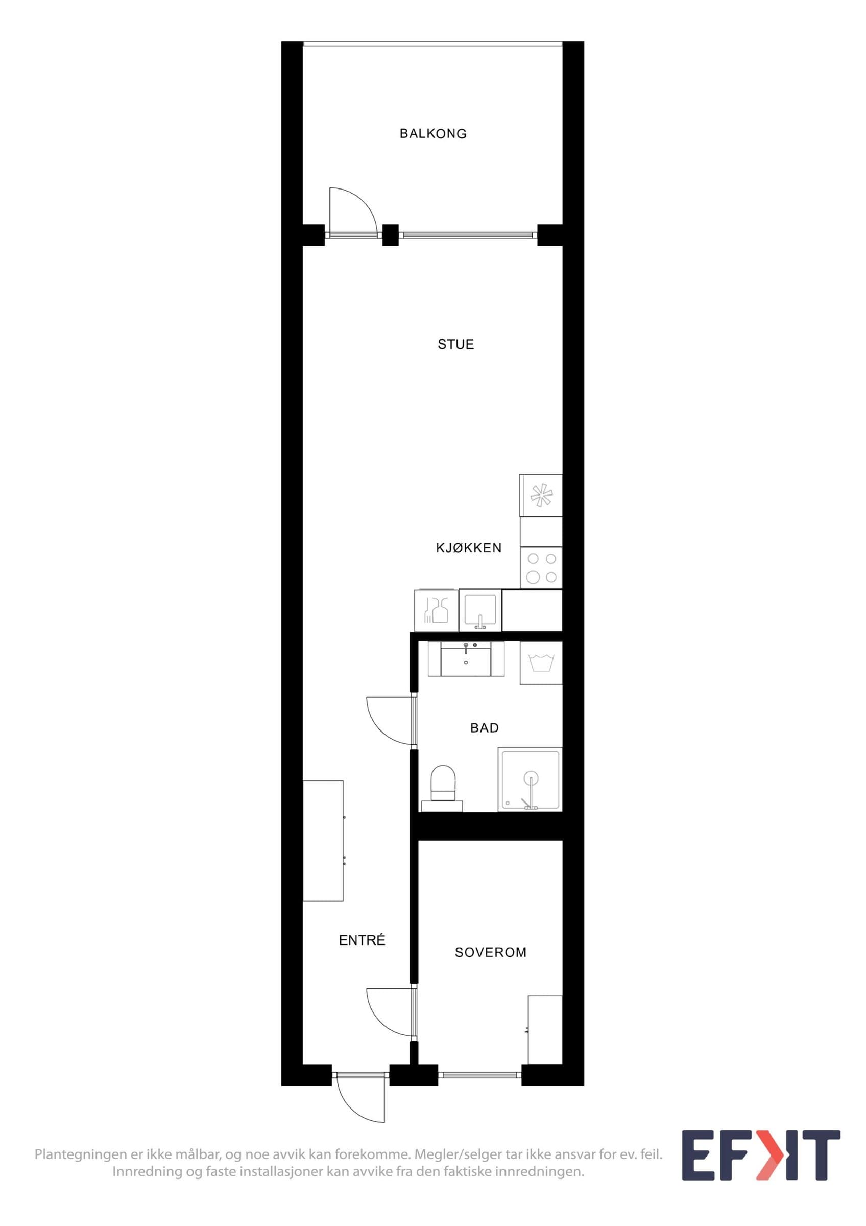
Velkommen til Nydalsenga 40 B! Her får du en moderne og fin 2-roms leilighet i et nyere sameie på Furnes. Leiligheten har en smart planløsning med åpen stue og kjøkken, et romslig soverom og et pent bad. Fra stuen kan du gå rett ut til en stor, overbygd balkong med plass til utemøbler og hyggelig utsikt. Boligen ligger i et rolig område, samtidig som du har kort vei til butikker, kollektivtransport og fine turområder. Sameiet er ryddig og godt drevet, uten fellesgjeld og med forutsigbare felleskostnader. Du får også parkeringsplass i garasje og egen bod. Dette er en lettstelt leilighet som er perfekt for førstegangskjøpere, enslige eller par.
11 500 kr (HELP boligkjøperforsikring (valgfritt)) 66 750 kr (Dokumentavgift) 545 kr (Tinglysing av pantedokument) 545 kr (Tinglysing av skjøte) --- 79 340 kr (Omkostninger totalt) --- 2 749 340 kr (Totalpris inkl. omkostninger) NB: Regnestykket forutsetter at det kun tinglyses én låneobligasjon og at eiendommen selges til prisantydning. Det tas forbehold om endringer i offentlige og private gebyrer. Selger er selv ansvarlig for følgende gebyr: 6 725 kr (Eierskiftegebyr) 545 kr (Panterett med urådighet)
Kommunenr: 3411
Gårdsnr: 766
Bruksnr: 81
Seksjonsnr: 32
Du møter selger direkte på visning - den personen som vet hvor sola kommer først inn om morgenen og hvor de beste skiløypene ligger. Få all informasjon fra første hånd og still spørsmål direkte til den som kjenner boligen best.
Legg inn bud enkelt og sikkert med BankID-verifisering. Du får SMS-varsler ved nye bud og kan følge budrunden i sanntid. Systemet er mer oversiktlig og lettere å bruke enn tradisjonelle meglersider.
Oppgjørsselskap med konsesjon fra Finanstilsynet håndterer alle formelle aspekter. Kontrakt signeres digitalt med BankID, og overtakelsesprotokollen gjennomføres enkelt på telefon. Alt foregår i henhold til avhendingsloven.


Her kan du sjekke hvordan Propr fungerer - helt uforpliktende.
Ring oss på 23 90 59 00 (9–16, ukedager), eller legg igjen ditt telefonnummer så ringer vi deg opp.
Chat: 9–19 på hverdager, 11–18 på søndager
Send e-post: post@propr.no
Ring oss: 23 90 59 00 (10–16, ukedager)