











































Posebyen / Sentrum
flott 2-roms selveierleilighet, i byggets 2.etg med solrik altan- meget sentralt
Prisantydning
Størrelse (BRA)
Internt bruksareal (BRA-I)
Boligtype
Eieform
Etasje
Fellesutgifter
- Tomteareal
- 359 m²
- Byggeår
- 1800
- Felleskost pr mnd
- 959 kr
- Kommunale avgifter
- 8 636 kr
- Tomtetype
- Eiet tomt
Romtyper
Soverom
Baderom
Stue
Kjøkken
Om boligen
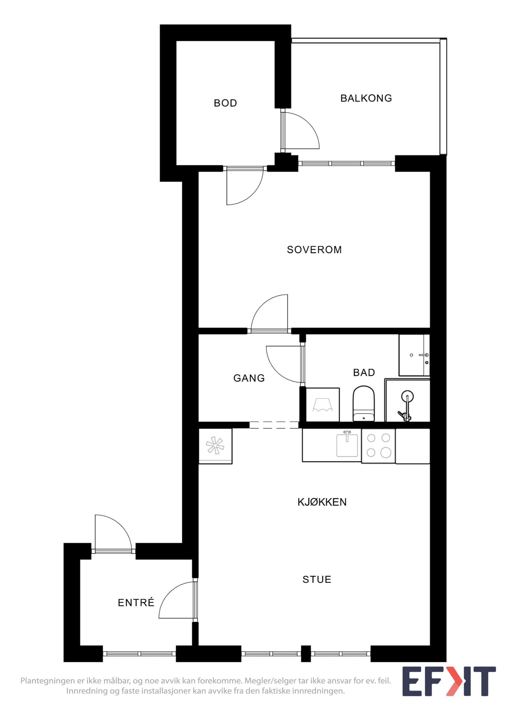
En flott 2-roms selveierleilighet beliggende i byggets 2. etasje. med solrik altan. Leiligheten har følgende planløsning:Gang/entré med plass til å henge av seg ytterklær. Lys og åpen stue/kjøkkenløsning. Plass til sofagruppe i stuen. Kjøkkenet har hvite fronter og laminat benkeplate. Hvitevarer som ovn, platetopp, oppvaskmaskin og kjøleskap/fryser medfølger salget. Fra stuen er det inngang til bad med fliser på gulv og plater på veggene. Badet er total reonovert i 2023 og har dusjkabinett, toalett og servant med underskap. Leiligheten har videre et romslig soverom med plass til både seng og klesskap. Soverommet er vendt mot bakgården. Fra soverommet kommer man videre til kontoret som har utgang til et solrikt altan med ettermiddags- og kveldssol. Felles lagringsplass på loft.
Beliggenhet
Kvadraturen med alle fasiliteter i umiddelbar nærhet. Dette er en stille og rolig gate i øverste hjørne av Kvadraturen/Posebyen mot Universitetet. Fra leiligheten er det kun en kort spasertur opp til Baneheia med utallige turløyper og flotte badevann.
Annet
Det er ingen forkjøpsrett på boligen. Om du ikke har mulighet til å komme på visning, holder jeg gjerne privatvisning. Ta kontakt på 48066893, så finner vi en tid. Jeg har tegnet boligselgerforsikring, og anbefaler også kjøper å tegne boligkjøperforsikring.
Omkostninger
10 900 kr (HELP boligkjøperforsikring (valgfritt)) 62 250 kr (Dokumentavgift) 545 kr (Tinglysing av pantedokument) 545 kr (Tinglysing av skjøte) --- 74 240 kr (Omkostninger totalt) --- 2 564 240 kr (Totalpris inkl. omkostninger) NB: Regnestykket forutsetter at det kun tinglyses én låneobligasjon og at eiendommen selges til prisantydning. Det tas forbehold om endringer i offentlige og private gebyrer. Selger er selv ansvarlig for følgende gebyr: 545 kr (Panterett med urådighet)
Matrikkelinformasjon
Kommunenr: 4204
Gårdsnr: 150
Bruksnr: 813
Seksjonsnr: 4
Trygg og profesjonell kjøpsprosess
- 1
Møt selger på visning
Du møter selger direkte på visning - den personen som vet hvor sola kommer først inn om morgenen og hvor de beste skiløypene ligger. Få all informasjon fra første hånd og still spørsmål direkte til den som kjenner boligen best.
- 2
Sikker budprosess med BankID
Legg inn bud enkelt og sikkert med BankID-verifisering. Du får SMS-varsler ved nye bud og kan følge budrunden i sanntid. Systemet er mer oversiktlig og lettere å bruke enn tradisjonelle meglersider.
- 3
Profesjonelt oppgjør og overtakelse
Oppgjørsselskap med konsesjon fra Finanstilsynet håndterer alle formelle aspekter. Kontrakt signeres digitalt med BankID, og overtakelsesprotokollen gjennomføres enkelt på telefon. Alt foregår i henhold til avhendingsloven.


Vurderer du å selge selv?
Her kan du sjekke hvordan Propr fungerer - helt uforpliktende.
Ring oss på 23 90 59 00 (9–16, ukedager), eller legg igjen ditt telefonnummer så ringer vi deg opp.
Aktuelt
Kundeservice
Chat: 9–19 på hverdager, 11–18 på søndager
Send e-post: post@propr.no
Ring oss: 23 90 59 00 (10–16, ukedager)