



















































FINNØY / Judaberg
Innholdsrik og moderne selveierleilighet sentralt på Judaberg. Carport. Terrasse. 2 soverom.
Prisantydning
Størrelse (BRA)
Internt bruksareal (BRA-I)
Boligtype
Eieform
Etasje
Fellesutgifter
- Tomteareal
- 225 m²
- Byggeår
- 2015
- Felleskost pr mnd
- 84 kr
- Kommunale avgifter
- 8 748 kr
- Tomtetype
- Eiet tomt
Romtyper
Soverom
Baderom
Stue
Bod
Kjøkken
Om boligen
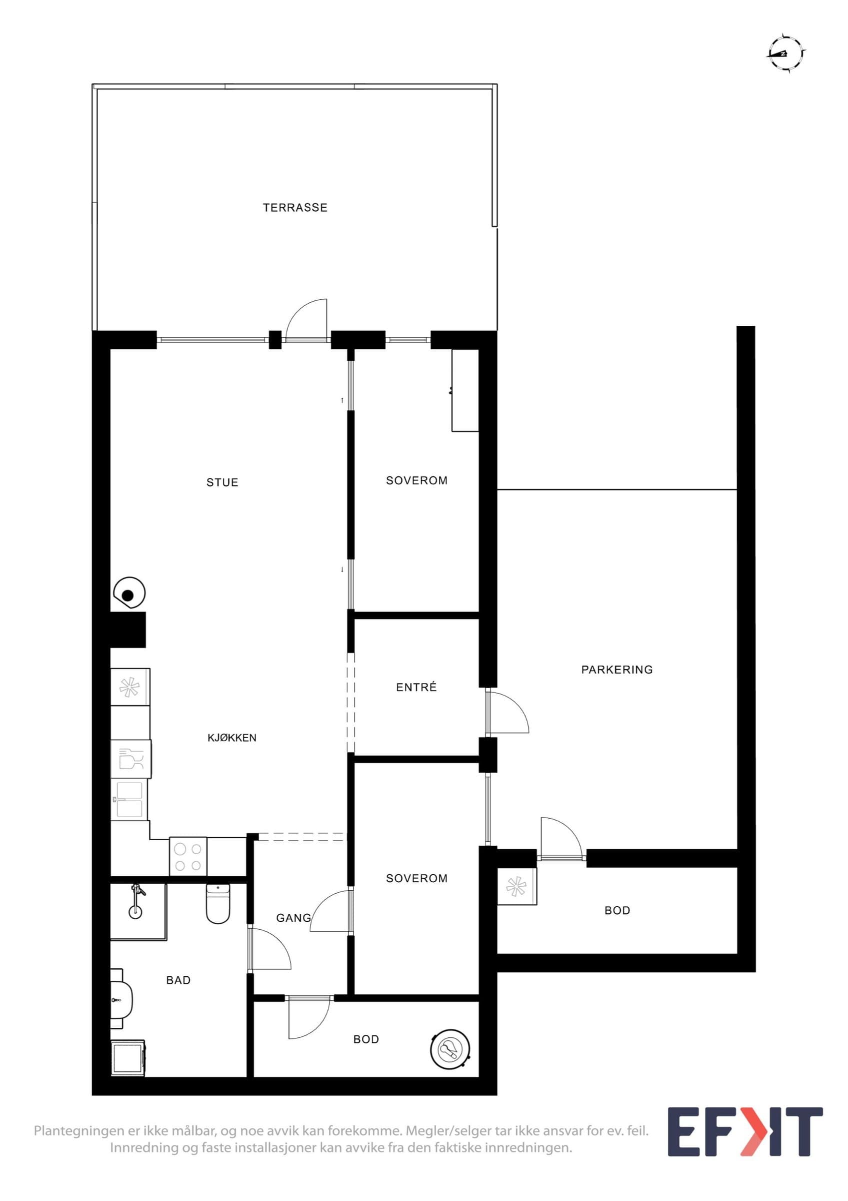
Velkommen til Hagatunet 54. Her får du en moderne og innflyttingsklar leilighet sentralt på Judaberg. Leiligheten har 2 soverom, stort kombinert kjøkken/stue, romslig bad, samt carport med oppbevaring i bod. Ny terrasse fra 2025 med gode solforhold gjennom dagen. Ved inngang i leiligheten møter man inngangsparti med oppvarmet gulv. Herfra går man inn i kombinert kjøkken og stue. Kjøkkenet er av god standard med moderne hvitevarer fra Bosch. Stue med spot-belysning som gir et rent og moderne uttrykk. Til de kalde vinterdagene har man peis til oppvarming og den ekstra hyggelige atmosfæren. Videre er det gode oppkoblingsmuligheter til TV og lydanlegg. Soverommene er av god størrelse og har plass til større senger, klesoppbevaring eventuelt også hjemmekontorløsning. Badet er romslig og har innlagt varme i gulv, plass til oppbevaring samt oppkobling til vaskemaskin og tørketrommel. Carport på 25 kvadratmeter med lademulighet for elbil. Ytterligere parkering på egen tomt til 1 ekstra bil på grusplass. Gjesteparkering i nabolaget. Lagringsmuligheter i bod i carport og teknisk rom innendørs. Teknisk rom med stor varmtvannsbereder samt balansert ventilasjonssystem med varmegjenvinning som går gjennom alle rom. Hjertelig velkommen på visning! Og glem ikke å melde deg på interessentlisten!
Beliggenhet
Leiligheten ligger svært sentralt til. Her har man gangavstand til alt som Judaberg har å by på. Blant annet kan følgende nevnes: Finnøy skole, flerbrukshall og friidrettsanlegg: 150 meter. Hagatoppen barnehage: 300 meter. Judaberg sentrum med butikker: 300 meter. Innbyggertorg og legekontor: 350 meter. Nabolaget er ellers forholdsvis rolig og veletablert med barnefamilier. På dagtid er det ofte barnelek og lignende i gatene. Nåværende eier opplever det som rolig og behagelig på kvelds og nattestid.
Visningsinformasjon og budrunde
Husk å melde deg på interessentliste for å få løpende oppdateringer om bud, visninger og annet. Visninger kan avtales fortløpende med selger. Selger vil være så fleksibel som mulig og arrangerer gjerne privatvisninger på kort varsel. Ellers oppfordres det til å melde seg på fellesvisninger ved ønske. Disse vil ikke bli arrangert uten påmeldte. Ved eventuell budgivning bes budgiver om å lese PROPR sine retningslinjer og prosedyrer for budgivning. Videre er selger svært mottakelig for spørsmål og andre henvendelser. Nøl ikke med å ta kontakt. Jeg ser frem til å dele min kjennskap om boligen og besvare alle henvendelser.
Annet
Boligen selges uten løsøre. Kun integrerte hvitevarer og elbillader inkluderes i utgangspunktet. Avtale om løsøre kan naturligvis gjøres ved eller etter eventuelt salg. Overtakelse ved salg ønskes fortrinnsvis i januar 2026. Men annet kan avtales. Selger vil ikke tegne «Norgespris» på strøm levert til leiligheten. Dette for å unngå eventuell uønsket bindingstid. Dette kan eventuelt tegnes av ny eier ved overtakelse. Fiber levert av Lyse/Altibox er lagt inn i leiligheten. Mål på enkeltområder: Carport: ca 25 kvadratmeter. Grusplass foran carport: ca 28 kvadratmeter. Ligger på eid tomt. Bod i carport: ca 6 kvadratmeter. Terrasse: ca 25 kvadratmeter. Eier av Hagatunet 54 vil ha en liten eierandel av fellesområder i vellaget. Dette er primært lekeplasser med tilhørende grøntareal. Disse vedlikeholdes av vellaget. Årskontingent er per dags dato på kroner 1000,-. Vellaget disponerer disse lekeplassene samt gjesteparkeringer nært Hagatunet 54. Fra tilstandsrapport er det 1 TG3 på bad. Nåværende eier har utbedret feilen midlertidig med silikon slik at fare for videre forfall minimeres. Dette etter muntlig anbefaling fra takstmann. Integrerte hvitevarer, termostater, ventilasjonsanlegg og lignende gis ikke garantier for utover eventuelt gjenstående leverandørgaranti.
Omkostninger
10 900 kr (HELP boligkjøperforsikring (valgfritt)) 68 750 kr (Dokumentavgift) 545 kr (Tinglysing av pantedokument) 545 kr (Tinglysing av skjøte) --- 80 740 kr (Omkostninger totalt) --- 2 830 740 kr (Totalpris inkl. omkostninger) NB: Regnestykket forutsetter at det kun tinglyses én låneobligasjon og at eiendommen selges til prisantydning. Det tas forbehold om endringer i offentlige og private gebyrer. Selger er selv ansvarlig for følgende gebyr: 545 kr (Panterett med urådighet)
Matrikkelinformasjon
Kommunenr: 1103
Gårdsnr: 126
Bruksnr: 91
Seksjonsnr: 1
Trygg og profesjonell kjøpsprosess
- 1
Møt selger på visning
Du møter selger direkte på visning - den personen som vet hvor sola kommer først inn om morgenen og hvor de beste skiløypene ligger. Få all informasjon fra første hånd og still spørsmål direkte til den som kjenner boligen best.
- 2
Sikker budprosess med BankID
Legg inn bud enkelt og sikkert med BankID-verifisering. Du får SMS-varsler ved nye bud og kan følge budrunden i sanntid. Systemet er mer oversiktlig og lettere å bruke enn tradisjonelle meglersider.
- 3
Profesjonelt oppgjør og overtakelse
Oppgjørsselskap med konsesjon fra Finanstilsynet håndterer alle formelle aspekter. Kontrakt signeres digitalt med BankID, og overtakelsesprotokollen gjennomføres enkelt på telefon. Alt foregår i henhold til avhendingsloven.


Vurderer du å selge selv?
Her kan du sjekke hvordan Propr fungerer - helt uforpliktende.
Ring oss på 23 90 59 00 (9–16, ukedager), eller legg igjen ditt telefonnummer så ringer vi deg opp.
Aktuelt
Kundeservice
Chat: 9–19 på hverdager, 12–20 på søndager
Send e-post: post@propr.no
Ring oss: 23 90 59 00 (10–16, ukedager)