





































































NEVERDAL / Eidbukt.
Praktisk 6-roms enebolig i barnevennlig område med hage, uthus og egen sjøtomt på 1238 m2. God utsikt!
Prisantydning
Størrelse (BRA)
Internt bruksareal (BRA-I)
Boligtype
Eieform
Antall etasjer
- Tomteareal
- 4 606 m²
- Byggeår
- 1947
- Kommunale avgifter
- 15 980 kr
- Tomtetype
- Eiet tomt
Romtyper
Soverom
Baderom
Stue
Kjøkken
Beliggenhet
Strandveien i NEVERDAL er kjent for sitt rolige og naturskjønne nabolag med eneboliger. Nabolaget preges av vakre omgivelser med skog, fjell og noen få hus spredt utover. Eiendommen er tilknyttet en romslig sjøtomt (Gnr. 52,Bnr.3 ) på 1238,4 kvm, noe som gir beboerne muligheten til å nyte vakre solnedganger og frisk sjøluft. Det er et fredelig område ideelt for de som søker ro og ønsker å bo i nært samspill med naturen. Nærheten til naturen gir muligheter for friluftsliv som turer i skog og mark, bading eller fiske. Til tross for den landlige beliggenheten, er det en kort kjøretur til nærliggende fasiliteter som butikker, skoler, treningssenter, gartneri og andre tjenester. Samlet sett er Strandveien i NEVERDAL et idyllisk sted å bo for de som verdsetter naturen og et stille nabolag. Visning kan avtales på telefon 92234649.
Om boligen
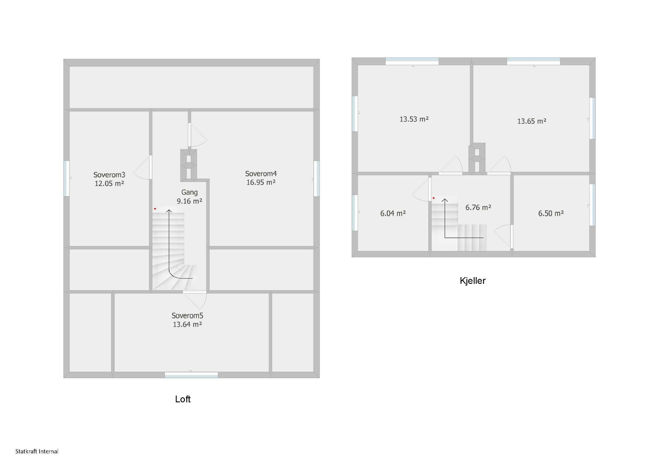
Denne eneboligen i Neverdal/ Eidbukt er et godt utgangspunkt for å skape en komfortabel og praktisk livsstil. Med 197 kvm fordelt over 2 etasjer, er det god plass til hele familien. Boligen har et uthus på 60 kvm samt p-plass, en terrasse med utsikt, og 3 ildsteder for ekstra hygge. Den er også barnevennlig, sentralt plassert og har en hage med bærtre. Boligen tilbyr offentlig vann/kloakk, utvidelsesmuligheter og bredbåndstilknytning for moderne bekvemmelighet. Boligen ligger usjenert til, der du kan nyte privatlivet. Samtidig som turterreng rett utenfor døren gir muligheter for friluftsliv og rekreasjon. Denne eneboligen trenger litt fornyelse og oppussing for å skape et trivelig hjem.
Annet
Dette er en eiendom med mange muligheter, stor tomt med muligheter for å bygge ut hus eventuelt bygge andre bygninger. Vei ned til sjøtomt for de som ønsker å utnytte båtlivets gleder.
Omkostninger
15 900 kr (HELP boligkjøperforsikring (valgfritt)) 40 000 kr (Dokumentavgift) 545 kr (Tinglysing av pantedokument) 545 kr (Tinglysing av skjøte) --- 56 990 kr (Omkostninger totalt) --- 1 656 990 kr (Totalpris inkl. omkostninger) NB: Regnestykket forutsetter at det kun tinglyses én låneobligasjon og at eiendommen selges til prisantydning. Det tas forbehold om endringer i offentlige og private gebyrer. Selger er selv ansvarlig for følgende gebyr: 545 kr (Panterett med urådighet)
Matrikkelinformasjon
Kommunenr: 1837
Gårdsnr: 51
Bruksnr: 5
Trygg og profesjonell kjøpsprosess
- 1
Møt selger på visning
Du møter selger direkte på visning - den personen som vet hvor sola kommer først inn om morgenen og hvor de beste skiløypene ligger. Få all informasjon fra første hånd og still spørsmål direkte til den som kjenner boligen best.
- 2
Sikker budprosess med BankID
Legg inn bud enkelt og sikkert med BankID-verifisering. Du får SMS-varsler ved nye bud og kan følge budrunden i sanntid. Systemet er mer oversiktlig og lettere å bruke enn tradisjonelle meglersider.
- 3
Profesjonelt oppgjør og overtakelse
Oppgjørsselskap med konsesjon fra Finanstilsynet håndterer alle formelle aspekter. Kontrakt signeres digitalt med BankID, og overtakelsesprotokollen gjennomføres enkelt på telefon. Alt foregår i henhold til avhendingsloven.


Vurderer du å selge selv?
Her kan du sjekke hvordan Propr fungerer - helt uforpliktende.
Ring oss på 23 90 59 00 (9–16, ukedager), eller legg igjen ditt telefonnummer så ringer vi deg opp.
Aktuelt
Kundeservice
Chat: 9–19 på hverdager, 12–20 på søndager
Send e-post: post@propr.no
Ring oss: 23 90 59 00 (10–16, ukedager)