



















































Tindlund
Nyere og moderne 3-roms leilighet på Tindlund Park | Sentralt | lave felles kost | vannbåren gulvvarme | gode solforhold
Prisantydning
Størrelse (BRA)
Internt bruksareal (BRA-I)
Boligtype
Eieform
Etasje
Fellesutgifter
- Tomteareal
 - 2 892 m²
 - Byggeår
 - 2023
 - Fellesgjeld
 - 0 kr
 - Felleskost pr mnd
 - 2 756 kr
 - Kommunale avgifter
 - 15 883 kr
 - Tomtetype
 - Eiet tomt
 
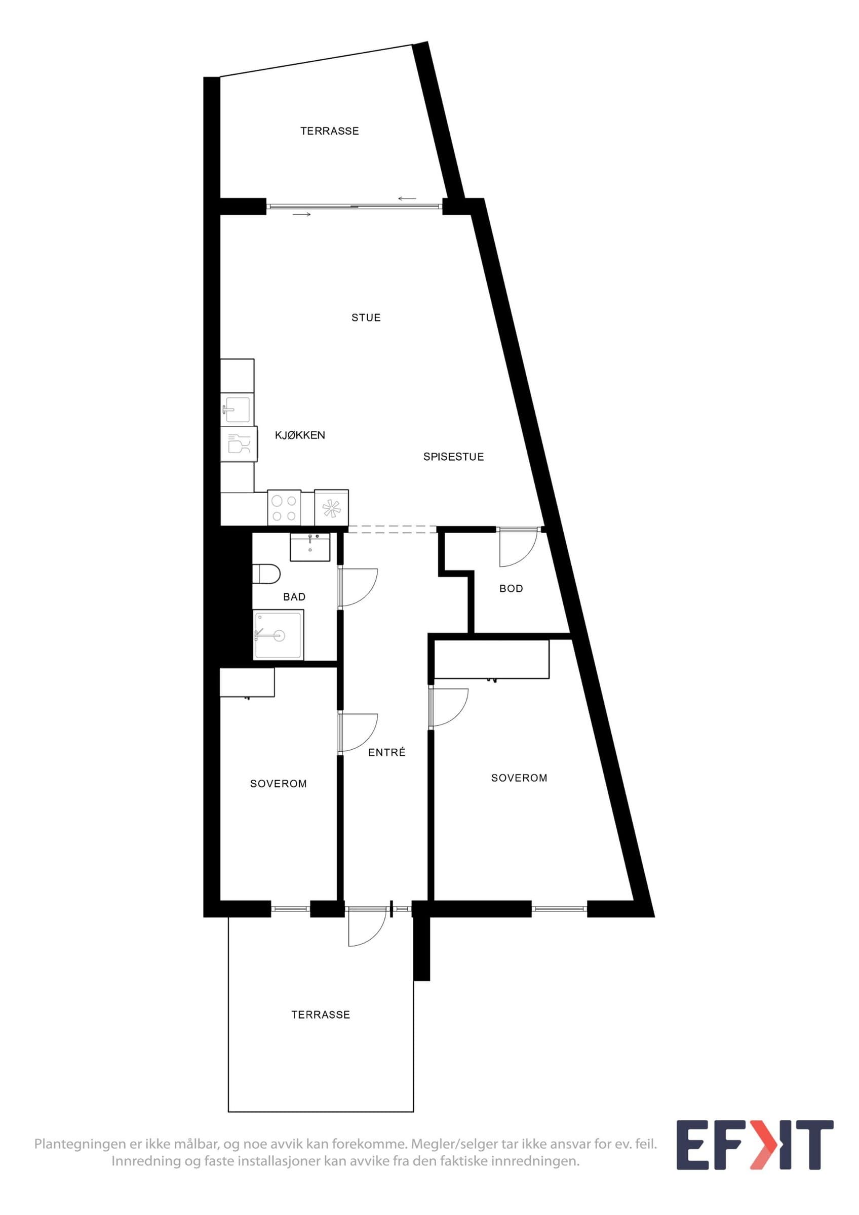
Romtyper
Soverom
Baderom
Stue
Bod
Kjøkken
Om boligen
Leiligheten ble oppført i 2023 og fremstår som moderne, stilren og lettstelt. Med en god planløsning over 70 kvm får du en lys og luftig bolig med store vindusflater og behagelig takhøyde. Kjøkkenet fra Strai har integrerte hvitevarer og ligger i åpen løsning mot stuen, som har direkte utgang til en solrik terrasse. Leiligheten inneholder entré med garderobeplass, romslig bad med dusj og opplegg for vaskemaskin, soverom med garderobe, samt innvendig bod med praktisk lagringsplass. Gjennomgående moderne materialvalg og et lavt behov for vedlikehold gjør dette til en svært innbydende bolig. Det ble gravd etter bergvarme når prosjektet ble etablert, så leiligheten har vannbåren gulvvarme i alle rom.
Beliggenhet
Leiligheten har en attraktiv beliggenhet i et nyere og rolig boligområde med gode solforhold. Den ligger sentralt mellom Sarpsborg og Fredrikstad, med kort vei til E6. Det er gangavstand til skole, butikk, kjøpesenter og flotte turområder i naturen. Uteområdet består av flotte parkområder med treningsapparater, lekeplass og vannspeil. Den private terrassen gir gode muligheter for avslapning og hyggelige ute stunder, med flott utsikt. Blant naboene er det mange eldre, og godt etablerte. Det er et stille og rolige område, med mange trivelige naboer!
Annet
For privatvisning, ta kontakt! Vetle Andersen Molvig Tlf - 480 12 990 Epost - vemolvig@online.no
Omkostninger
10 900 kr (HELP boligkjøperforsikring (valgfritt)) 97 500 kr (Dokumentavgift) 545 kr (Tinglysing av pantedokument) 545 kr (Tinglysing av skjøte) --- 109 490 kr (Omkostninger totalt) --- 4 009 490 kr (Totalpris inkl. omkostninger) NB: Regnestykket forutsetter at det kun tinglyses én låneobligasjon og at eiendommen selges til prisantydning. Det tas forbehold om endringer i offentlige og private gebyrer. Selger er selv ansvarlig for følgende gebyr: 6 570 kr (Eierskiftegebyr) 545 kr (Panterett med urådighet)
Matrikkelinformasjon
Kommunenr: 3105
Gårdsnr: 2076
Bruksnr: 554
Seksjonsnr: 58
Trygg og profesjonell kjøpsprosess
- 1
Møt selger på visning
Du møter selger direkte på visning - den personen som vet hvor sola kommer først inn om morgenen og hvor de beste skiløypene ligger. Få all informasjon fra første hånd og still spørsmål direkte til den som kjenner boligen best.
 - 2
Sikker budprosess med BankID
Legg inn bud enkelt og sikkert med BankID-verifisering. Du får SMS-varsler ved nye bud og kan følge budrunden i sanntid. Systemet er mer oversiktlig og lettere å bruke enn tradisjonelle meglersider.
 - 3
Profesjonelt oppgjør og overtakelse
Oppgjørsselskap med konsesjon fra Finanstilsynet håndterer alle formelle aspekter. Kontrakt signeres digitalt med BankID, og overtakelsesprotokollen gjennomføres enkelt på telefon. Alt foregår i henhold til avhendingsloven.
 


Vurderer du å selge selv?
Her kan du sjekke hvordan Propr fungerer - helt uforpliktende.
Ring oss på 23 90 59 00 (9–16, ukedager), eller legg igjen ditt telefonnummer så ringer vi deg opp.
Aktuelt
Kundeservice
Chat: 9–19 på hverdager, 12–20 på søndager
Send e-post: post@propr.no
Ring oss: 23 90 59 00 (10–16, ukedager)