

































































AURSKOG / Finstadbru
Landlig idyll - nyrenovert enebolig med nytt uthus og stor hage - skjermet og sentralt
Prisantydning
Størrelse (BRA)
Internt bruksareal (BRA-I)
Boligtype
Eieform
Antall etasjer
- Tomteareal
- 1 350 m²
- Byggeår
- 1957
- Kommunale avgifter
- 20 172 kr
- Tomtetype
- Eiet tomt
Romtyper
Soverom
Baderom
Stue
Bod
Kjøkken
Hovedpunkter
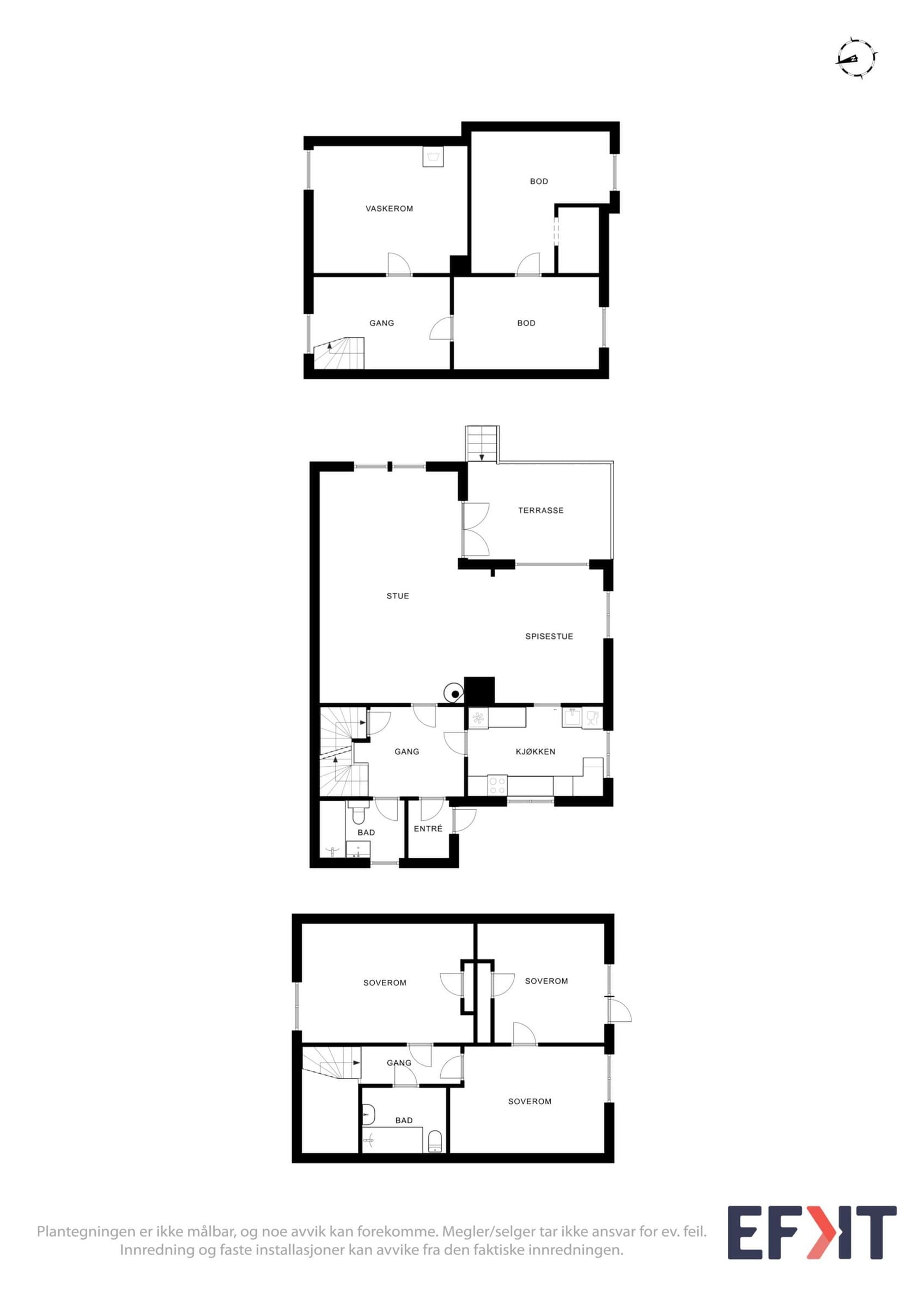
Velkommen til Oladalen! Enkelt småbruksliv i vakre omgivelser. - Klassisk enebolig totalrenovert i 2021-25 - Tre soverom, to bad, stor stue og kjøkken - Uthus nytt i 2021 - Isolert hønsehus og solid hønsegård - Garasje og uteparkering på gruslagt plass - Kjøkkenhage og bærbusker - Sol fra morgen til kveld - Skjermet beliggenhet innerst i blindvei - Rolige omgivelser og hyggelig nabolag - Nært Aursmoen med butikker, skole, golfbane mv - Rikt friluftsliv - Nært Lillestrøm og Oslo 1. etg. Areal 76 kvm BRA, 86 kvm BTA. Entré, gang/trapperom, bad/wc, kjøkken og stue. Terrasse 19 kvm. 2. etg. Areal 46 kvm BRA, 48 kvm BTA. Gang, bad/wc og 3 soverom. (Skråtak reduserer det målbare arealet.) Kjeller. Areal 54 kvm BRA, 63 kvm BTA. 3 rom, hvorav et med bod/spiskammers. Uthus: 38 kvm BRA.
Om boligen
Huset er en klassisk 50-talls enebolig som er bygd ut i to omganger og totalrenovert i 2021-25. Nytt er blant annet tak, pipe, elektrisk anlegg, vinduer, dører, bad og kjøkken, samt overflater. Stuen er lys og romslig, med mange muligheter for møblering. Utgang til terrasse og hage. Ny vedovn og pipe gir trygg og effektiv fyring, sammen med panelovner. Strømforbruket er lavt. Store vinduer med 180 graders utsikt til jorder, trær og dyreliv. Kjøkkenet er nytt av 2021, med gode arbeidsforhold og sittekrok i hjørnet. Innredningen er fra Huseby, og hvitevarene fra AEG og Gorenje. Tre store soverom i harmoniske farger, med gulv i samme solide eikelaminat som nede. To av soverommene har integrerte klesskap, og ett har utgang til egen veranda. Badet nede er lyst og delikat, med fliser på vegger og gulv, innredning i eik fra Linn bad, dusjhjørne, vegghengt toalett og plass til stort badekar. Gulvet er nylig lagt på nytt slik at avviket i tilstandsrapporten er rettet opp. Badet oppe er eldre, men med nytt toalett. Kjelleren gir lagringsplass i tre rom, hvorav ett med spiskammers. Det er satt inn nye vinduer, og ventiler som gir god lufting.
Uthus og tomt
Uthuset ble bygget nytt fra grunnen i 2021, i samme 50-talls stil som eneboligen. Garasje med hems som gir ytterligere lagringsplass. Den isolerte delen av uthuset har hønsehus og et ekstra rom. Gode lysforhold og panelovn. Hønsegården ute er sikret mot rovdyr både oven- og nedenfra. En stor økologisk kjøkkenhage bidrar til selvforsyning, sammen med bærbusker, kantareller, rabarbra mv. God plass til for eksempel dyrehold, drivhus og fotballbane. Svært gode solforhold, med morgensol på terrassen og kveldssol på trammen.
Beliggenhet
Boligen ligger uvanlig idyllisk til. Usjenert og stille, og samtidig overraskende sentralt. Oladalen er kjent for sitt gode naboskap, med dugnadskultur og gamle tradisjoner som julegrantenning. Landskapet består av jorder og skog, med rikt plante- og dyreliv. Om vinteren begynner skiløypene rett utenfor døren. Området er et friluftseldorado hele året, med Mangenfjellet, Elgheia, Langsjøen, Røytjern og mye mer. Aursmoen er nærmeste sentrum (3 km) med butikker, helsetjenester, skole, barnehage, idrettshall, golfbane mv. Bjørkelangen (13 km) har i tillegg videregående skole, kulturhus, vinmonopol mv. Boligen ligger 25 km fra Lillestrøm og 40 km fra Oslo. Tog til Oslo S tar 34 minutter fra Blaker stasjon.
Annet
Velkommen på visning! Ta kontakt hvis ikke det oppsatte tidspunktet passer, så finner vi tid for privat visning. Tilstandsrapporten gir en grundig beskrivelse av boligen. Merk at rapporten er laget etter nytt regelverk av 2022, der tilstandsgradene følger standard NS3600. En del avvik er dermed normalt, og behøver ikke bety at arbeid må gjøres. Et unntak er badet oppe, som bør rehabiliteres hvis det skal tas i bruk. Avviket på badet nede er nylig utbedret, og tilstandsrapporten vil bli revidert. Ta gjerne kontakt ved spørsmål. Hvitevarer og utstyr til dyrehold kan medfølge.
Omkostninger
15 900 kr (HELP boligkjøperforsikring (valgfritt)) 112 500 kr (Dokumentavgift) 545 kr (Tinglysing av pantedokument) 545 kr (Tinglysing av skjøte) --- 129 490 kr (Omkostninger totalt) --- 4 629 490 kr (Totalpris inkl. omkostninger) NB: Regnestykket forutsetter at det kun tinglyses én låneobligasjon og at eiendommen selges til prisantydning. Det tas forbehold om endringer i offentlige og private gebyrer. Selger er selv ansvarlig for følgende gebyr: 545 kr (Panterett med urådighet)
Matrikkelinformasjon
Kommunenr: 3226
Gårdsnr: 193
Bruksnr: 29
Trygg og profesjonell kjøpsprosess
- 1
Møt selger på visning
Du møter selger direkte på visning - den personen som vet hvor sola kommer først inn om morgenen og hvor de beste skiløypene ligger. Få all informasjon fra første hånd og still spørsmål direkte til den som kjenner boligen best.
- 2
Sikker budprosess med BankID
Legg inn bud enkelt og sikkert med BankID-verifisering. Du får SMS-varsler ved nye bud og kan følge budrunden i sanntid. Systemet er mer oversiktlig og lettere å bruke enn tradisjonelle meglersider.
- 3
Profesjonelt oppgjør og overtakelse
Oppgjørsselskap med konsesjon fra Finanstilsynet håndterer alle formelle aspekter. Kontrakt signeres digitalt med BankID, og overtakelsesprotokollen gjennomføres enkelt på telefon. Alt foregår i henhold til avhendingsloven.


Vurderer du å selge selv?
Her kan du sjekke hvordan Propr fungerer - helt uforpliktende.
Ring oss på 23 90 59 00 (9–16, ukedager), eller legg igjen ditt telefonnummer så ringer vi deg opp.
Aktuelt
Kundeservice
Chat: 9–19 på hverdager, 12–20 på søndager
Send e-post: post@propr.no
Ring oss: 23 90 59 00 (10–16, ukedager)