































KJELLER / Kjeller
Sentral, lys og klassisk 2-roms selveierleilighet i barnevennlig område, med balkong. God planløsning
Prisantydning
Størrelse (BRA)
Internt bruksareal (BRA-I)
Boligtype
Eieform
Etasje
Fellesutgifter
- Byggeår
- 2017
- Felleskost pr mnd
- 3 471 kr
- Tomtetype
- Eiet tomt
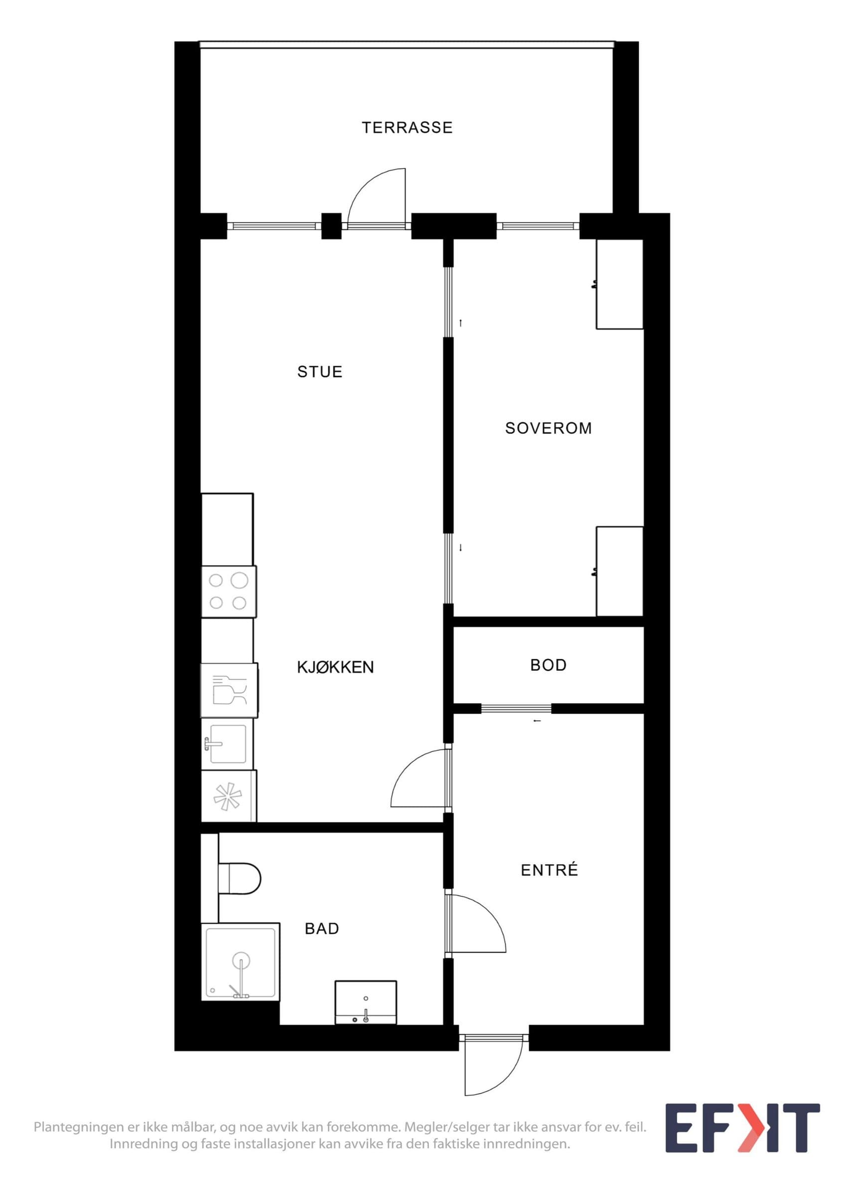
Romtyper
Soverom
Baderom
Stue
Bod
Kjøkken
Om boligen
Moderne og arealeffektiv 2-roms leilighet i 1. etasje fra 2017, med gjennomgående god standard. Med garasje/p-plass, heis, balkong/terrasse, sentral beliggenhet, kabel-tv, bredbåndstilknytning, sportsbod, barnevennlige omgivelser og lademulighet til elbil, er dette et ideelt hjem for både enkeltpersoner og par. Her får du en lys og innbydende bolig med god planløsning, vannbåren gulvvarme, stilrent kjøkken fra Sigdal og fliser på bad med opplegg for vaskemaskin. Perfekt for førstegangskjøpere eller som utleieobjekt. Kommunale avgifter, med unntak av eiendomsskatt, er inkludert i felleskostnadene.
Beliggenhet
Leiligheten i Vestengveien på Kjeller ligger i et rolig og familievennlig nabolag. Nærmiljøet preges av grønne områder og fine turområder, perfekt for friluftsliv og rekreasjon. I nærheten finner man skoler, barnehager og idrettsanlegg, noe som gjør området attraktivt for barnefamilier. Det er også gode offentlige transportforbindelser og nærhet til butikker og servicetilbud. Alt i alt et trivelig og praktisk nabolag å bo i. Perfekt for både pendlere og studenter.
Annet
Ingen forkjøpsrett. Privatvisning kan enkelt avtales direkte med selger. Overtakelse etter nærmere avtale.
Omkostninger
10 900 kr (HELP boligkjøperforsikring (valgfritt)) 82 500 kr (Dokumentavgift) 545 kr (Tinglysing av pantedokument) 545 kr (Tinglysing av skjøte) --- 94 490 kr (Omkostninger totalt) --- 3 394 490 kr (Totalpris inkl. omkostninger) NB: Regnestykket forutsetter at det kun tinglyses én låneobligasjon og at eiendommen selges til prisantydning. Det tas forbehold om endringer i offentlige og private gebyrer. Selger er selv ansvarlig for følgende gebyr: 6 570 kr (Eierskiftegebyr) 545 kr (Panterett med urådighet)
Matrikkelinformasjon
Kommunenr: 3205
Gårdsnr: 31
Bruksnr: 334
Seksjonsnr: 9
Trygg og profesjonell kjøpsprosess
- 1
Møt selger på visning
Du møter selger direkte på visning - den personen som vet hvor sola kommer først inn om morgenen og hvor de beste skiløypene ligger. Få all informasjon fra første hånd og still spørsmål direkte til den som kjenner boligen best.
- 2
Sikker budprosess med BankID
Legg inn bud enkelt og sikkert med BankID-verifisering. Du får SMS-varsler ved nye bud og kan følge budrunden i sanntid. Systemet er mer oversiktlig og lettere å bruke enn tradisjonelle meglersider.
- 3
Profesjonelt oppgjør og overtakelse
Oppgjørsselskap med konsesjon fra Finanstilsynet håndterer alle formelle aspekter. Kontrakt signeres digitalt med BankID, og overtakelsesprotokollen gjennomføres enkelt på telefon. Alt foregår i henhold til avhendingsloven.


Vurderer du å selge selv?
Her kan du sjekke hvordan Propr fungerer - helt uforpliktende.
Ring oss på 23 90 59 00 (9–16, ukedager), eller legg igjen ditt telefonnummer så ringer vi deg opp.
Aktuelt
Kundeservice
Chat: 9–19 på hverdager, 12–20 på søndager
Send e-post: post@propr.no
Ring oss: 23 90 59 00 (10–16, ukedager)