







































LOMMEDALEN / Lommedalen
Nydelig og klassisk 5-roms rekkehus i barnevennlig område med terrasse
Prisantydning
Størrelse (BRA)
Internt bruksareal (BRA-I)
Boligtype
Eieform
Antall etasjer
- Tomteareal
- 93 m²
- Byggeår
- 1969
- Kommunale avgifter
- 14 910 kr
- Tomtetype
- Eiet tomt
Romtyper
Soverom
Baderom
Stue
Bod
Kjøkken
Om Boligen
Velkommen til Slalåmveien 11C. Dette rekkehuset er meget innholdsrikt og er over 3 plan med gjennomgående god standard. Det er mye som er pusset opp de siste årene, som komplett ny hovedetasje med stue og kjøkken i 2024, og nytt hovedbad i 2022. I hovedetasje er det innfelte smartlys (spoter) i tak og i plassbygd hylle. Fra stuen er det direkte adkomst til en flott terrasse på 17m2 med mye sol. Det er også egen gressplen med 2 frukttrær, og adkomst rett til flotte fellesområder. Det er en stor lekeplass som er nylig opprettet rett utenfor inngangsdøren.
Høydepunkter
Skjermet og fritt beliggende Solrikt Svært familievennlig 2 bad Garasje, deles med nabo Terrasse på ca. 17 kvm og hage 3 plan med gode løsninger Flotte turmuligheter rett utenfor døren Mye aktiviteter for store og små i nærområdet. Lekeplass rett utenfor døren. Boligen ligger i et meget rolig og barnevennlig område med kort vei til barnehager, skoler, dagligvare, kollektiv transport m.m. Her vil både store og små trives godt
Beliggenhet
Enheten ligger meget rolig til med minimalt med veistøy. Ligger meget godt plassert på feltet. 2 min. gange til bussholdeplass med ekspressbuss til/fra Oslo. 3 min. gange til flott treningssenter og Xtra butikk. 6 min gange til Rema 1000 Lommedalen. Begge butikker med posttjenester. Alpinanlegg i umiddelbar nærhet (ski in ved greit med snø). Masse turmuligheter, sykkelstier, langrenn, lysløyper og merkede stier i marka. Nært til handelsstedet Bærums Verk samt Bekkestua og Sandvika. Disp. rett til garasje som deles med nabo samt rikelig med bilopstillingsplasser reservert for boligeiere rett utenfor døren. Nyoppført stor lekeplass rett utenfor inngangsdøren med god oversikt fra kjøkkenvindu.
Om tomten
93 m2 eiet tomt. 17m2 terasse i hovedetasje med tilhørende hage med frukttrær. Grenser mot fine fellesarealer. Mulighet for opparbeidelse av platting foran inngangsdør, plass til sykler ol foran inngangsdør. Liten gressplen også foran inngangsdør. Bod på 5m2 rett utenfor inngangsdør.
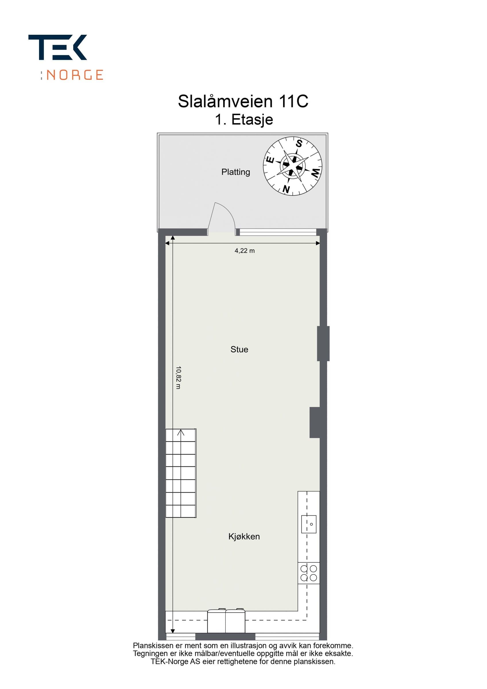
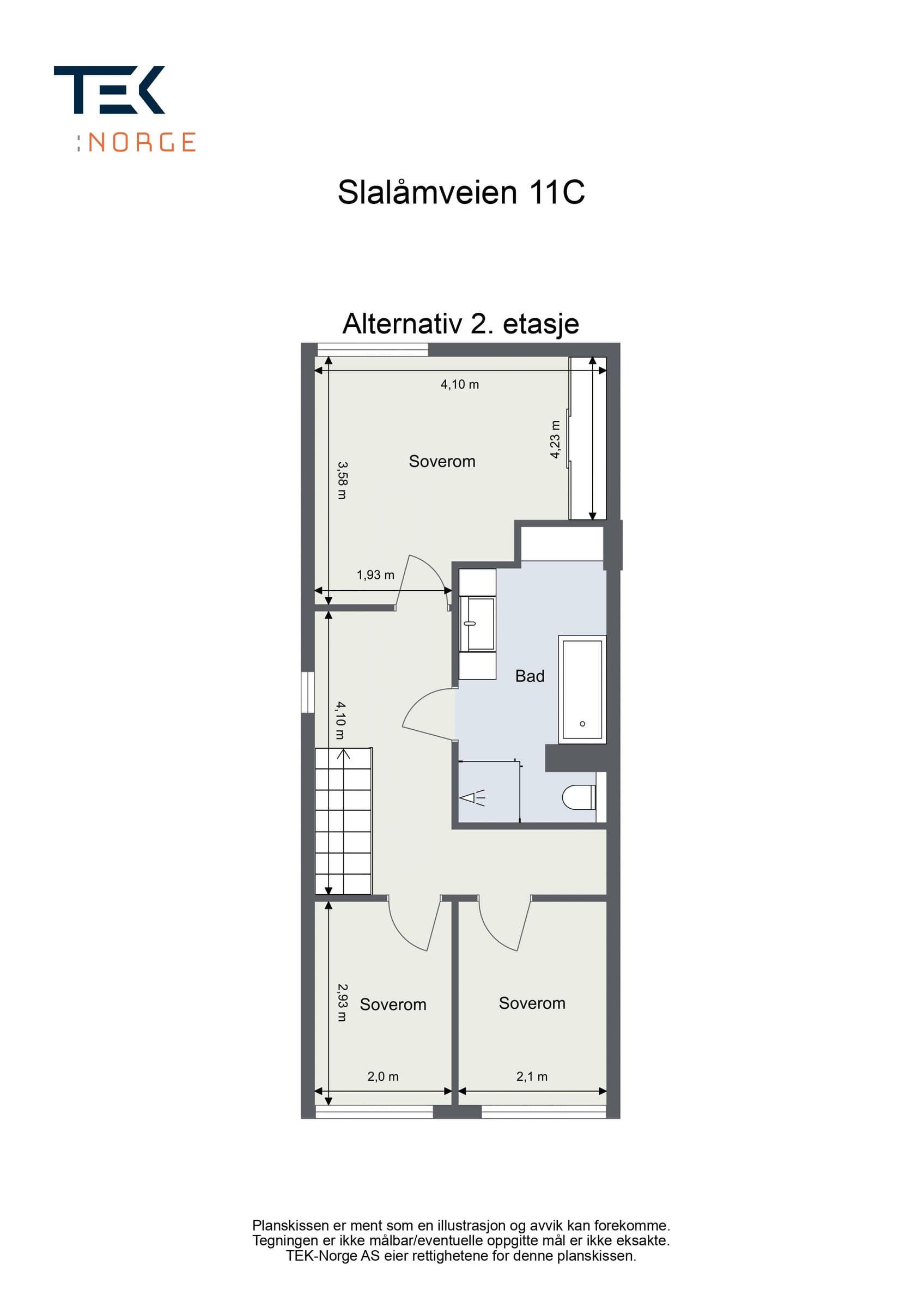
Arealbeskrivelse
BRA-i: Underetasje: 43 kvm. Vindfang, Trapperom/Gang, Soverom, Bad, Kjellerstue, Oppbevaring Hovedetasje: 45 kvm. Stue, Kjøkken 2. Etasje: 46 kvm. Trapperom, Hovedbad, Hovedsoverom, Soverom 2.
Barnehage/Skole
Nærmeste barnehage: Lommedalen barnehage (6 min gange) Nærmeste barneskole: Lommedalen skole (14 min gange) Nærmeste ungdomsskole: Mølladammen ungdomsskole (20 min gange)
Annet
Ingen forkjøpsrett. Ta kontakt for privatvisninger Sameienavn: Nedre Haug Huseierforening Org. no: 989838873 Forretningsfører: ABBL Forkjøpsrett: Sameiet har ikke forkjøpsrett Styregodkjennelse: Trenger ikke godkjennelse fra styret Se vedlegg: Nedre Haug Huseierforening Sakspapirer. Spesielt: Styrets årsinformasjon, Punkt 18. Behov for vedlikehold og utbedringer hvor huseierne har ansvar. Vedtekter for Nedre Haug Huseierforening: paragraf 4. Huseiernes plikter og rettigheter. Sentralstøvsuger montert på loft ikke funksjonell. Rør fjernet ved oppussing i tak hovedetasje 2024.
Matrikkelinformasjon
Kommunenr: 3201 Gårdsnr: 97 Bruksnr: 112
Økonomi
Fellesutgifter: Kr 2.968,- pr. mnd. Dette inkluderer forsikring av bygningsmassen, bredbånd/TV, snøbrøyting og strøing av fellesarealer, plenklipping. Forventet økning av fellesutgiftene fra 01.01.2026. med kr 300,- månedlig. Kommunale avgifter, vann- avløpsavgift, renovasjon samt pipeavgift belastes huseier direkte fra kommunen og ikke gjennom fellesutgiftene. Boligen er tilknyttet Nedre Haug huseierforening, som består av 56 medlemmer. Her er ABBL forretningsfører. Huseierforeningen har felles fullverdiforsikring i Protector. Regnskapet for 2024 viser et underskudd på kr 439.835,-. Det er budsjettert med overskudd på kr. 187.816,- for 2025. Andel formue(2024): kr 13.086,- Andel gjeld(2024): Kr 12.034,-
Omkostninger
10 900 kr (HELP boligkjøperforsikring (valgfritt)) 158 750 kr (Dokumentavgift) 545 kr (Tinglysing av pantedokument) 545 kr (Tinglysing av skjøte) --- 170 740 kr (Omkostninger totalt) --- 6 520 740 kr (Totalpris inkl. omkostninger) NB: Regnestykket forutsetter at det kun tinglyses én låneobligasjon og at eiendommen selges til prisantydning. Det tas forbehold om endringer i offentlige og private gebyrer. Selger er selv ansvarlig for følgende gebyr: 545 kr (Panterett med urådighet)
Matrikkelinformasjon
Kommunenr: 3201
Gårdsnr: 97
Bruksnr: 112
Trygg og profesjonell kjøpsprosess
- 1
Møt selger på visning
Du møter selger direkte på visning - den personen som vet hvor sola kommer først inn om morgenen og hvor de beste skiløypene ligger. Få all informasjon fra første hånd og still spørsmål direkte til den som kjenner boligen best.
- 2
Sikker budprosess med BankID
Legg inn bud enkelt og sikkert med BankID-verifisering. Du får SMS-varsler ved nye bud og kan følge budrunden i sanntid. Systemet er mer oversiktlig og lettere å bruke enn tradisjonelle meglersider.
- 3
Profesjonelt oppgjør og overtakelse
Oppgjørsselskap med konsesjon fra Finanstilsynet håndterer alle formelle aspekter. Kontrakt signeres digitalt med BankID, og overtakelsesprotokollen gjennomføres enkelt på telefon. Alt foregår i henhold til avhendingsloven.


Vurderer du å selge selv?
Her kan du sjekke hvordan Propr fungerer - helt uforpliktende.
Ring oss på 23 90 59 00 (9–16, ukedager), eller legg igjen ditt telefonnummer så ringer vi deg opp.
Aktuelt
Kundeservice
Chat: 9–19 på hverdager, 12–20 på søndager
Send e-post: post@propr.no
Ring oss: 23 90 59 00 (10–16, ukedager)