









































STANGE / Starhellinga
Innholdsrik enebolig med fin beliggenhet innerst i blindvei - Stor hage og fine uteplasser - Solrik tomt.
Prisantydning
Størrelse (BRA)
Internt bruksareal (BRA-I)
Boligtype
Eieform
Antall etasjer
- Tomteareal
- 913 m²
- Byggeår
- 1978
- Tomtetype
- Eiet tomt
Romtyper
Soverom
Baderom
Stue
Bod
Kjøkken
Om boligen
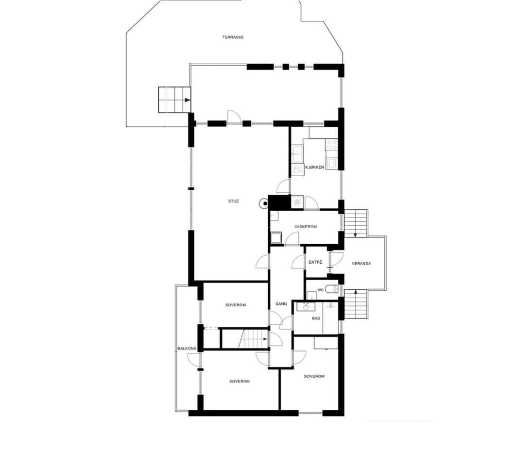
Velkommen til Gaupevegen 20! Vi har gleden av å presentere denne hyggelige eiendommen på Starhellinga i Stange. Eiendommen er pent opparbeidet og består av enebolig, carport, frittstående bod og lekestue. Boligen er oppført i 1978 over ett plan med kjeller og fremstår velholdt. Den inneholder vindfang med ankomst til wc, romslig stue med utgang til veranda, kjøkken, bad, tre soverom, vaskerom og flere boder. Her bor man fint til i landlige omgivelser på etablert boligfelt. Merk deg dette: -Solid og innholdsrik familiebolig -Kjøkken fra 2017 og bad fra 2013 -Mulighet for fler soverom -Stor og fin hage med beplantning -Carport med el-bil lader -God beliggenhet innerst i blindvei Velkommen til en hyggelig visning!
Beliggenhet
Boligen har en god plassering med fin utsikt, kort gangavstand til barneskole og umiddelbar nærhet til både lekeplasser og flotte turområder. Det tar rundt 5 minutter med bil inn til stange sentrum og ca 15 minutter til Hamar. Det er også bussforbindelse på stedet.
Annet
Ta kontakt for visning eller eventuelle spørsmål.
Omkostninger
15 900 kr (HELP boligkjøperforsikring (valgfritt)) 82 500 kr (Dokumentavgift) 545 kr (Tinglysing av pantedokument) 545 kr (Tinglysing av skjøte) --- 99 490 kr (Omkostninger totalt) --- 3 399 490 kr (Totalpris inkl. omkostninger) NB: Regnestykket forutsetter at det kun tinglyses én låneobligasjon og at eiendommen selges til prisantydning. Det tas forbehold om endringer i offentlige og private gebyrer. Selger er selv ansvarlig for følgende gebyr: 545 kr (Panterett med urådighet)
Matrikkelinformasjon
Kommunenr: 3413
Gårdsnr: 306
Bruksnr: 134
Trygg og profesjonell kjøpsprosess
- 1
Møt selger på visning
Du møter selger direkte på visning - den personen som vet hvor sola kommer først inn om morgenen og hvor de beste skiløypene ligger. Få all informasjon fra første hånd og still spørsmål direkte til den som kjenner boligen best.
- 2
Sikker budprosess med BankID
Legg inn bud enkelt og sikkert med BankID-verifisering. Du får SMS-varsler ved nye bud og kan følge budrunden i sanntid. Systemet er mer oversiktlig og lettere å bruke enn tradisjonelle meglersider.
- 3
Profesjonelt oppgjør og overtakelse
Oppgjørsselskap med konsesjon fra Finanstilsynet håndterer alle formelle aspekter. Kontrakt signeres digitalt med BankID, og overtakelsesprotokollen gjennomføres enkelt på telefon. Alt foregår i henhold til avhendingsloven.


Vurderer du å selge selv?
Her kan du sjekke hvordan Propr fungerer - helt uforpliktende.
Ring oss på 23 90 59 00 (9–16, ukedager), eller legg igjen ditt telefonnummer så ringer vi deg opp.
Aktuelt
Kundeservice
Chat: 9–19 på hverdager, 12–20 på søndager
Send e-post: post@propr.no
Ring oss: 23 90 59 00 (10–16, ukedager)