

































Sandaker
NY PRIS - Praktisk og koselig 2-roms selveierleilighet, med balkong - Heis - Garasjeplass med lader
Prisantydning
Størrelse (BRA)
Internt bruksareal (BRA-I)
Boligtype
Eieform
Etasje
Fellesutgifter
- Byggeår
- 1987
- Fellesgjeld
- 5 411 kr
- Felleskost pr mnd
- 4 431 kr
- Tomtetype
- Eiet tomt
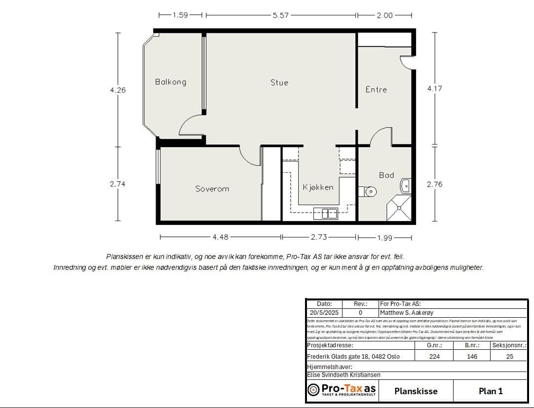
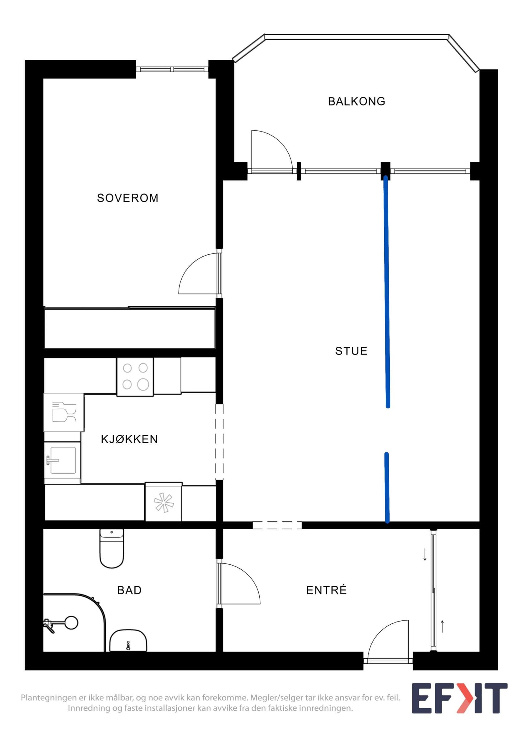
Romtyper
Soverom
Baderom
Stue
Bod
Kjøkken
Om boligen
Velkommen til Frederik Glads gate 18 - En romslig og hyggelig 2-roms leilighet sentralt på Sandaker i Oslo med mye potensiale. Leiligheten har nordvestvendt balkong på 8 kvm vendt mot gårdsrom og fasiliteter som heis, garasjeplass med lader og bod på loftet. -Luftig stue med egen sone til kjøkken -Garasjeplass med lader medfølger -Heis -Balkong med ettermiddagssol -Koselig bakgård med benker og mulighet for grilling -Ingen forkjøpsrett -Tillatt med utleie
Beliggenhet
Leiligheten ligger i en rolig sidegate til Grefsenveien med svært kort avstand til kollektiv og dagligvare. -Storo-senteret med alle sine butikker kun en kort gåtur unna -Kort vei til idylliske Torshovdalen, Akerselva og Lillo Gård -Nydalen med BI kun en kort spasertur unna -Flere skoler, barnehager og treningssenter innenfor liten radius
Annet
Tanker om oppussing? Tilsvarende leilighet en etasje ned er bygget om til 3-roms... Det er ingen forkjøpsrett på boligen.
Omkostninger
4 990 000 kr (Prisantydning) 5 411 kr (Andel av fellesgjeld) --- 4 995 411 kr (Pris inkl. fellesgjeld) Omkostninger 10 900 kr (HELP boligkjøperforsikring (valgfritt)) 124 870 kr (Dokumentavgift) 545 kr (Tinglysing av pantedokument) 545 kr (Tinglysing av skjøte) --- 136 860 kr (Omkostninger totalt) --- 5 132 271 kr (Totalpris inkl. omkostninger) NB: Regnestykket forutsetter at det kun tinglyses én låneobligasjon og at eiendommen selges til prisantydning. Det tas forbehold om endringer i offentlige og private gebyrer. Selger er selv ansvarlig for følgende gebyr: 6 570 kr (Eierskiftegebyr) 545 kr (Panterett med urådighet)
Matrikkelinformasjon
Kommunenr: 301
Gårdsnr: 224
Bruksnr: 146
Seksjonsnr: 25
Trygg og profesjonell kjøpsprosess
- 1
Møt selger på visning
Du møter selger direkte på visning - den personen som vet hvor sola kommer først inn om morgenen og hvor de beste skiløypene ligger. Få all informasjon fra første hånd og still spørsmål direkte til den som kjenner boligen best.
- 2
Sikker budprosess med BankID
Legg inn bud enkelt og sikkert med BankID-verifisering. Du får SMS-varsler ved nye bud og kan følge budrunden i sanntid. Systemet er mer oversiktlig og lettere å bruke enn tradisjonelle meglersider.
- 3
Profesjonelt oppgjør og overtakelse
Oppgjørsselskap med konsesjon fra Finanstilsynet håndterer alle formelle aspekter. Kontrakt signeres digitalt med BankID, og overtakelsesprotokollen gjennomføres enkelt på telefon. Alt foregår i henhold til avhendingsloven.


Vurderer du å selge selv?
Her kan du sjekke hvordan Propr fungerer - helt uforpliktende.
Ring oss på 23 90 59 00 (9–16, ukedager), eller legg igjen ditt telefonnummer så ringer vi deg opp.
Aktuelt
Kundeservice
Chat: 9–19 på hverdager, 12–20 på søndager
Send e-post: post@propr.no
Ring oss: 23 90 59 00 (10–16, ukedager)