













































































Kilværet 8984 Vega
NY PRIS ! Nyere hytte i Unesco verdensarv selges. Innflyttingsklar med båter og ny landgang/flytekai
Prisantydning
Størrelse (BRA)
Internt bruksareal (BRA-I)
Boligtype
Eieform
Antall etasjer
- Tomteareal
- 6 500 m²
- Byggeår
- 2010
- Tomtetype
- Eiet tomt
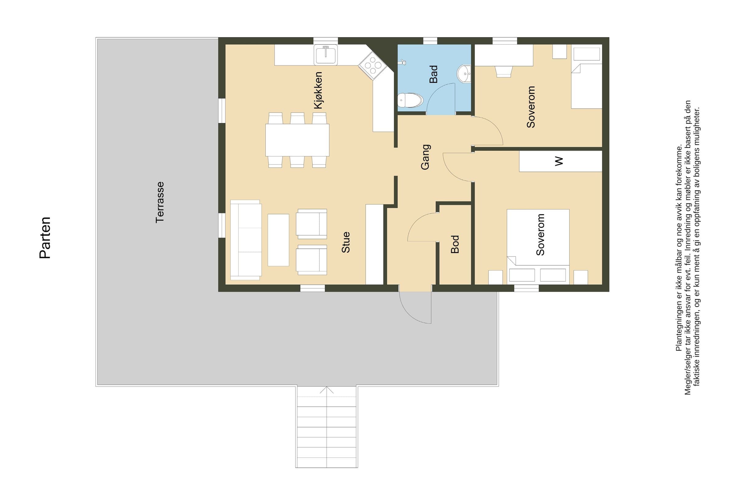
Romtyper
Soverom
Baderom
Stue
Bod
Kjøkken
Om boligen
Skjelden perle på Helgelandskysten i Nordland fylke, selges! Hytte i Unesco Verdensarv, 6 nm nord om Vega selges pga sviktende helse. Hytta kan skilte med at hver en spiker, hver en plank osv er håndbåret, opp til flere ganger. Øya ligger i det som Miljødirektoratet definerer som verdifull kulturlandskap. Mer info finnes på Vega kommune sine sider. Har du lyst å prøve deg som evokter og høste den eksklusive edderduna? Det er mulighet å søke via Vegaøyans verdenarv om å bli lønnet evokter. Har du lyst å oppleve den nydelige skjærgården på Sør-Helgeland? Bare Vega kommune har 6500 øyer og holmer. Hytta er 15 år. Den har panoramautsikt i alle retninger og ligger i sjøfuglenes rike. Hytta har alle fasiliteter og er 61 bra-i og det medfølger flytekai, robåt og Yamarin 14 fot med 9,9 hester. Alt i god stand. Hytta kan selges med innbo. Det er innlagt strøm og vann. 5g dekning, vaskemaskin, tørketrommel, fryser og intigrert kjøleskap. Mangler oppvaskmaskin. Hytta står på pilarer over grunnmuren av mitt barndomshjem. Den er bygget og innredet i tradisjonell kyststil. Hytta har stor altan , mot øst og sør. Med sol fra morgen til kveld. Det begynner å bli litt rust i nedkant, endel steder på takplatene. Kilværet er ei idyllisk øy med god plass mellom bebyggelse. Vår eiendom er 6,5 mål og har sjø under 100 meter fra hytta, på to sider. Vi har hurtigbåtkai bare ca 100 meter unna hytta. Hurtigbåten kan også frakte matrialer osv. Øya er veiløs og annkomst er med enten hurtigbåt som går mellom Vega og Sandnessjøen med ulike stopper, eller egen båt. Dette er en unik mulighet og det er ca 50 år siden sist det var solgt fast eiendom på øya. Det følger med noen felles holmer og skjær for grunneiere. Ta med mat, klesbagen og start jobben med å forme dette unike stedet til ditt!
Beliggenhet
Vi har en 25 fots båt og båtplass i Brønnøysund ( båten kan selges eller inngå i en byttehandel med en cabincruser ). Den 21nm lange båtturen til hytta, er i storslagen kyst natur. Kilværet har 14 fritidseiendommer. Kilværet består av 2 øyer, som er bundet sammen med ei bro. Øya er omgitt av en fantastisk skjærgård. Der finnes godt om fiskeplasser og strender, bare en rotur unna. Uansett hvor du snur deg, så er det et åpent og storslagen utsikt til fjellene i nabokommunene. Dønnamannen, de syv søstre, store finnkne, høyholmstingene, vegafjellene og sølafjellet er bare noen av fjellene du ser fra øya. Kilværet ligger nært Skogsholmen med si fantastiske matservering. På altanen kan du lytte til ærfuglens kurtisesang og følge tett på sjøfugl sin syklus. Det er åpent, storslagent og mektig i øyan.
Annet
Det foreligger en tinglyst avtale med en hytte nabo, om bruk og ankomst av kai annlegg. Øya har egen velforening hvor kontigenten er 500 kr pr år. Beløpet dekker vedlikehold og forsikring av hurtigbåtkai og bru. Foreningen disponerer en slåmaskin, for alle medlemmer. Vi kjøper boligselger forsikring. Og oppfordrer kjøper til å kjøpe boligkjøpe forsikring.
Omkostninger
14 700 kr (HELP boligkjøperforsikring (valgfritt)) 62 250 kr (Dokumentavgift) 545 kr (Tinglysing av pantedokument) 545 kr (Tinglysing av skjøte) --- 78 040 kr (Omkostninger totalt) --- 2 568 040 kr (Totalpris inkl. omkostninger) NB: Regnestykket forutsetter at det kun tinglyses én låneobligasjon og at eiendommen selges til prisantydning. Det tas forbehold om endringer i offentlige og private gebyrer. Selger er selv ansvarlig for følgende gebyr: 545 kr (Panterett med urådighet)
Matrikkelinformasjon
Kommunenr: 1815
Gårdsnr: 99
Bruksnr: 22
Trygg og profesjonell kjøpsprosess
- 1
Møt selger på visning
Du møter selger direkte på visning - den personen som vet hvor sola kommer først inn om morgenen og hvor de beste skiløypene ligger. Få all informasjon fra første hånd og still spørsmål direkte til den som kjenner boligen best.
- 2
Sikker budprosess med BankID
Legg inn bud enkelt og sikkert med BankID-verifisering. Du får SMS-varsler ved nye bud og kan følge budrunden i sanntid. Systemet er mer oversiktlig og lettere å bruke enn tradisjonelle meglersider.
- 3
Profesjonelt oppgjør og overtakelse
Oppgjørsselskap med konsesjon fra Finanstilsynet håndterer alle formelle aspekter. Kontrakt signeres digitalt med BankID, og overtakelsesprotokollen gjennomføres enkelt på telefon. Alt foregår i henhold til avhendingsloven.


Vurderer du å selge selv?
Her kan du sjekke hvordan Propr fungerer - helt uforpliktende.
Ring oss på 23 90 59 00 (9–16, ukedager), eller legg igjen ditt telefonnummer så ringer vi deg opp.
Aktuelt
Kundeservice
Chat: 9–19 på hverdager, 11–18 på søndager
Send e-post: post@propr.no
Ring oss: 23 90 59 00 (10–16, ukedager)