









































































HORTEN / Ollebakken
Ny Pris! Flott eiendom, 3 sov (5), garasje, SPA anlegg, sentralt og "bo gratis*" 2x utleie. Total renovert i 2000
Prisantydning
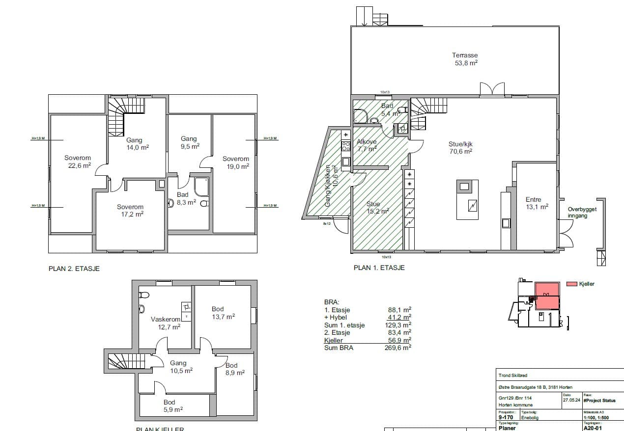
Størrelse (BRA)
Internt bruksareal (BRA-I)
Boligtype
Eieform
Antall etasjer
- Tomteareal
- 931 m²
- Byggeår
- 1914
- Kommunale avgifter
- 15 222 kr
- Tomtetype
- Eiet tomt
Romtyper
Soverom
Baderom
Stue
Bod
Kjøkken
Om boligen
Hovedboligen – Elegant og romslig pen. Total renovert år 2000 (revet og bygd opp igjen). * "Bo Gratis" er basert på hva husleieinntekter dekker av renter, og rentefradraget du får på skatten. 1. etasje Denne etasjen er boligens hjerte, med et imponerende åpent stue- og kjøkken område i "open-living"-stil. Gulvet er dekket av elegant høyglanset hvit marmor fliser, som reflekterer lys og tilfører en sofistikert atmosfære. Hvit glanset strekk-tak med moderne spotter fullfører det luksuriøse preget når alt lys reflekteres i tak og gulv. Store vinduer/v.dør inviterer lyset inn og gir et flott lys inne. 2. etasje Her finner du tre romslige soverom. Rommene er innredet med tanke på komfort og fleksibilitet – ideelt for familier eller som gjesterom og hjemmekontor. Det nyrenoverte badet fra 2025 er et flott syn, med moderne materialvalg og en avslappende atmosfære. Kjeller Kjelleren kombinerer praktisk funksjonalitet med muligheter. 2 stk. luftvekslere sikrer optimal luftkvalitet, mens varmepumpen gir behagelig luft og temperatur. Et stort rom med mulighet for rømningsvindu kan enkelt tilpasses som soverom og et mindre med samme mulighet. Bod for oppbevaring. Hybel https://www.finn.no/realestate/lettings/ad.html?finnkode=274732627 Egen inngang inn til kjøkken og med stue med sove alkove og eget bad med opplegg for vaskemaskin. Dør til iboende må åpnes av ny eier. Terrasse og uteliv Her er det en oase med Terrasser, jacuzzi og svimspa Den store terrassen er et naturlig samlingspunkt for avslapning og sosiale sammenkomster. Med en luksuriøs jacuzzi og svimspa installasjon vinter og sommer, er dette stedet hvor du kan nyte hverdags-luksus i sine fulle drag. Uteområdet er designet for trivsel og funksjonalitet, med god plass til utemøbler, grill og aktiviteter. Øvre dekk har Pergola over hele og elektrisitet samt 4 Philips Hue spotter med farger. Rulle rampe mellom de 3 nivåene med terrasse.
Annet
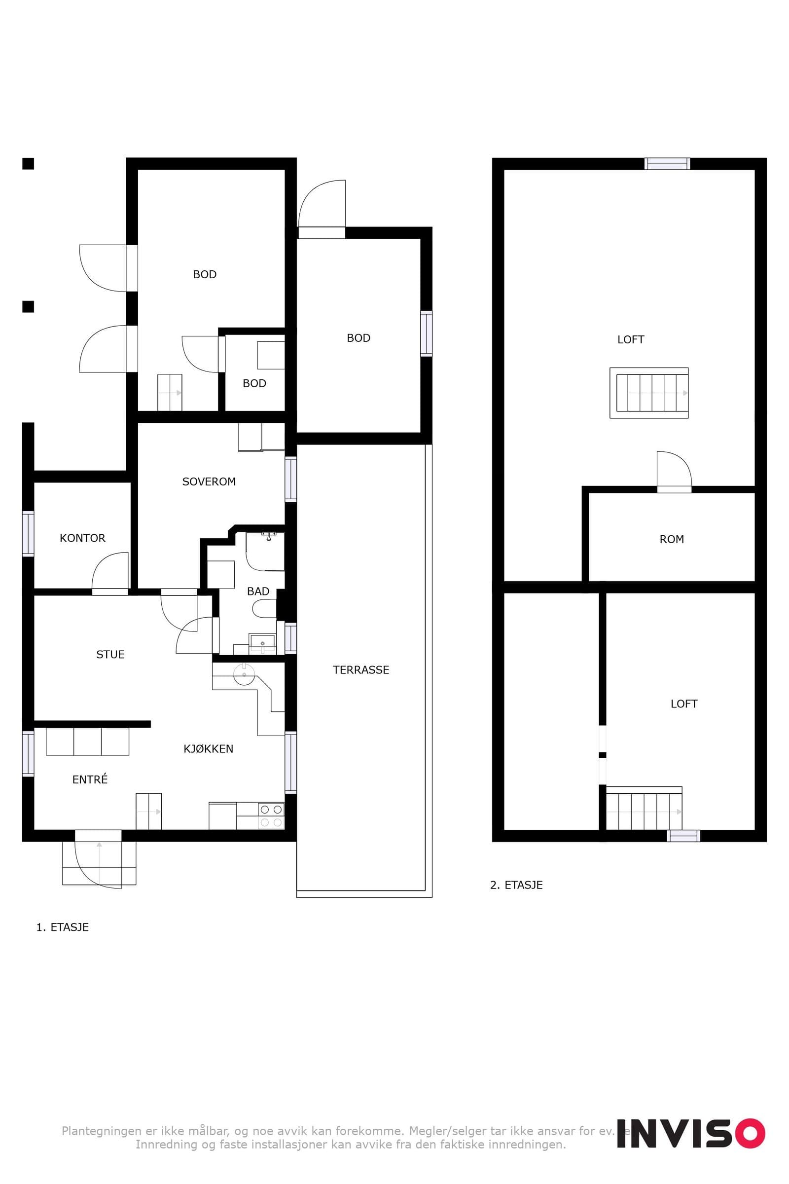
Anneks https://www.finn.no/realestate/lettings/ad.html?finnkode=166598372 Annekset med 1,5 soverom i egen leilighet 45m2 tilbyr fleksible muligheter, enten det er som gjestebolig eller utleie enhet m oppvaskmaskin og integrert ovn og platetopp. Det har et bruksareal på 102 m² og inkluderer en hems for ekstra oppbevaring, samt boder. Badet ble oppgradert i 2016 og holder en god standard. Egen varmepumpe. Garasje Den romslige garasjen på 46 m² ekstra høy innvendig, oppført i 1998, gir god plass til bil og lagring. Bygningen er i solid stand og godt vedlikeholdt. Isolerte vegger. ________________________________________ Tomt og uteområde Tomten er pent opparbeidet med plen og belegningsstein. Terrassen utenfor hovedhuset har pergola med farge Hue spotter, jacuzzi og swimspa – perfekt for avslapning og sosiale sammenkomster. Skjermet og mulighet for avstenging om du har barn eller hund ute. Leieinntekter og muligheter *"Bo Gratis"! Eiendommen har to godkjente utleie enheter som genererer en samlet fri leieinntekt på 24 000+ NOK per måned. Dette gir en ypperlig mulighet for nye eiere til å dekke boliglånet gjennom stabile inntekter. Leiekontraktene overføres til ny eier, og utleie enhetene er allerede godt etablert med leietakere. Leiekontrakter kan belånes. Tilstandsrapporten må leses før bud gis. Dokument om eiendomsskatt er lagt til. Strømmåler låst til Norgespris
Beliggenhet
Området – Alt du trenger, rett i nærheten Eiendommen ligger i et populært område, tett på alt det beste Horten har å tilby. • Nærhet til natur: Indre havn, flotte turstier, moderne parkanlegg og en ny havn for badeopplevelser og park. • Barnevennlig: Kort vei til skoler, barnehager og lekeplasser. • Sentral beliggenhet: Gangavstand til sentrum med butikker, restauranter, småbåthavn, badeanlegg, lekepark/park og kollektivtransport 100 m.
NY Visning!! - meld deg på!
Visning til oppsatt tid eller avtales på forespørsel. Vi ber om forståelse for at visninger må bli tilrettelagt i samarbeid med leietakere. ________________________________________ For mer informasjon eller avtale om visning, ta kontakt med selger direkte på telefon eller sms Boligselger forsikring blir tegnet
Smarte ting - kjekt å vite/ha - Gjør livet enklere
Smart lader for elbil: Laderen er plassert i garasjen og gjør det enkelt og praktisk å lade elbilen. Tibber Pulse og smart strømstyring: Systemet overvåker og optimaliserer strømforbruket, slik at man unngår å overskride ønsket samtidig strømforbruk. Dette bidrar til å redusere effektavgiftene på strømregningen. Smart styring av spotter og varmekabler: Alle spottene i huset er smarte, og varmekablene i hallen nede og på badet oppe kan enkelt styres via smarthusteknologi, Philips Hue-lyskastere ved bassengområdet: Fire smarte lyskastere gir mulighet til å justere belysningen etter behov og stemning. Lyskasterne kan også kobles til lydkilder som Spotify, og synkronisere lyset med musikk eller andre lydopplevelser. Robotgressklipper av premiummerket Husqvarna 430: Denne avanserte gressklipperen har helt nye batterier og kniver, noe som sikrer optimal ytelse og vedlikehold av hagen med minimal innsats. Jacuzzi og SwimSpa: Jacuzzien har ikke smartstyring (kan ettermonteres), men temperaturen justeres vanligvis én gang i året, ofte før vinteren for å spare energi. SwimSpa er derimot utstyrt med APP via Balboa-fasiliteter, som gjør det mulig å kontrollere temperaturen direkte. Overvåkningskameraer: Huset har fem overvåkningskameraer ute, inkludert ringeklokke fra Ring.com. Alle kameraene har innebygget flomlys med Night vision. Kameraene sørger for at huset overvåkes og holdes trygt, og alt opptak lagres sikkert i skyen med både bilder og video. Alarm med over 35 punkter deteksjon. Overføring til ny eier om ønskelig. Selger vil bistå med overføring av alle nødvendige smarte elementer til ny eiers konto, slik at alle funksjoner og systemer enkelt kan brukes.
Tilstandsrapporten vesentligheter Oppsummering av tilstandsrapport – Østre Braarudgate 18 B, Horten
Blant de alvorligste funnene (TG3) er tilstanden på vaskerommet i kjelleren, hvor gulvoverflater har sprekker og dårlig fall mot sluk. Dette øker risikoen for vannskader, og det anbefales utbedring. I tillegg er terrengforholdene rundt eiendommen problematiske, med fall inn mot grunnmuren. Dette kan føre til økt fuktbelastning og bør justeres for å hindre fremtidige skader. Det er også flere vesentlige avvik (TG2) som bør følges opp. Takkonstruksjonen har begrenset ventilasjon, satt inn to luftehatter og ytterligere 30 cm blåse isolasjon i ettertid, ytterligere tiltak må vurderes, dette er noe som kan forårsake kondens og på sikt skade treverket. To gjenstående eldre vinduer viser tydelige tegn på værslitasje, og noen bør etter hvert skiftes ut. På badet i hybelen er det påvist feilmonterte våtromsplater og sprekker i gulvfliser, noe som kan øke risikoen for fuktgjennomtrengning. For det tilhørende annekset er det identifisert skjevheter i takkonstruksjonen, noe som kan tyde på strukturelle svakheter som bør undersøkes nærmere, noen takbord må byttes. Videre er det ikke gjennomført radonmålinger i annekset. Når det gjelder drenering, ble det sist utført en større oppgradering rundt år 2000, men med den alderen på anlegget bør det følges med på eventuelle fuktproblemer i kjeller og grunnmur. Det er også registrert horisontal sprekker i grunnmuren, særlig ved terrassen, noe som bør utbedres for å forhindre videre skader. Til tross for disse avvikene har boligen en rekke nyere oppgraderinger, som nytt bad i 2. etasje (2025), oppgradert el-anlegg (2022) og nyere PVC-vinduer (2015) i hoveddelen av huset. Oppvarmingssystemet er også modernisert med varmepumper og elektrisk gulvvarme i flere rom. Oppsummert er boligen i relativt god stand.
Linker til Hybel og Anneks utleie annonser
Hybel: https://www.finn.no/realestate/lettings/ad.html?finnkode=274732627 Anneks: https://www.finn.no/realestate/lettings/ad.html?finnkode=166598372
Omkostninger
14 700 kr (HELP boligkjøperforsikring (valgfritt)) 187 250 kr (Dokumentavgift) 545 kr (Tinglysing av pantedokument) 545 kr (Tinglysing av skjøte) --- 203 040 kr (Omkostninger totalt) --- 7 693 040 kr (Totalpris inkl. omkostninger) NB: Regnestykket forutsetter at det kun tinglyses én låneobligasjon og at eiendommen selges til prisantydning. Det tas forbehold om endringer i offentlige og private gebyrer. Selger er selv ansvarlig for følgende gebyr: 0 kr (Eierskiftegebyr) 545 kr (Panterett med urådighet)
Matrikkelinformasjon
Kommunenr: 3901
Gårdsnr: 129
Bruksnr: 114
Trygg og profesjonell kjøpsprosess
- 1
Møt selger på visning
Du møter selger direkte på visning - den personen som vet hvor sola kommer først inn om morgenen og hvor de beste skiløypene ligger. Få all informasjon fra første hånd og still spørsmål direkte til den som kjenner boligen best.
- 2
Sikker budprosess med BankID
Legg inn bud enkelt og sikkert med BankID-verifisering. Du får SMS-varsler ved nye bud og kan følge budrunden i sanntid. Systemet er mer oversiktlig og lettere å bruke enn tradisjonelle meglersider.
- 3
Profesjonelt oppgjør og overtakelse
Oppgjørsselskap med konsesjon fra Finanstilsynet håndterer alle formelle aspekter. Kontrakt signeres digitalt med BankID, og overtakelsesprotokollen gjennomføres enkelt på telefon. Alt foregår i henhold til avhendingsloven.


Vurderer du å selge selv?
Her kan du sjekke hvordan Propr fungerer - helt uforpliktende.
Ring oss på 23 90 59 00 (9–16, ukedager), eller legg igjen ditt telefonnummer så ringer vi deg opp.
Aktuelt
Kundeservice
Chat: 9–19 på hverdager, 11–18 på søndager
Send e-post: post@propr.no
Ring oss: 23 90 59 00 (10–16, ukedager)