















































































Prisantydning
Størrelse (BRA)
Internt bruksareal (BRA-I)
Boligtype
Eieform
Etasje
Fellesutgifter
- Byggeår
- 1924
- Fellesgjeld
- 1 307 409 kr
- Fellesformue
- 33 563 kr
- Felleskost pr mnd
- 10 763 kr
- Tomtetype
- Eiet tomt
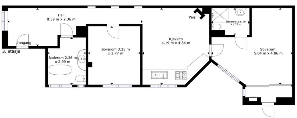
Romtyper
Soverom
Baderom
Stue
Bod
Om boligen
- 3. etasje av bygård fra 1924. - Totalt loft - og takrenovering med eksklusive, glaserte tegltaket i 2024. Forventet levetid på et tegltak er minst 75 år. - i 2024 har det blitt installert viftekonvektoren som skal redusere strøm kostnader. - 3-roms leilighet med unikt særpreg. - En av Tønsbergs eldste bydeler. - Like utenfor sentrumskjernen, men utenfor trafikk støy. - Koselig, frodig felles hage med benker. - Boder på loft og i kjeller. - Entré med garderobeskapet og praktisk oppbevarings skapet. - Stue og kjøkken i åpen løsning. - Stort vindu og peis. - Delvis integrerte hvitevarer. - To gjennomførte, flislagte bad. Badene oppgradert i 2021/22. - To romslig soverom som er på avstand fra hverandre.
Beliggenhet
Meget sentralt beliggende, men allikevel i et stille og rolig strøk. Et sjarmerende og idyllisk boområde med små trange gater og eldre bebyggelse. Gangavstand til alt av sentrumsfunksjoner, Haugar med kafè og kunstutstillinger, Tønsbergs ståll- glass konstruert bibliotek med en rekke aktiviteter, Tønsberg brygge med yrende uteliv, restauranter og småbåthavn. Flere herlige parker og grønne lunger i nærområdet. Kort vei til offentlig kommunikasjon, med buss og togforbindelse til Oslo, Torp flyplass, Høgskolen i Sørøst-Norge, eller andre vestfoldbyer. Det er kun 800m til Tønsbergs togstasjon. Dobbeltsporutbyggingen skal medvirke klargjøring av Tønsberg stasjon for fire tog i timen. Det vil gi et helt nytt intercity-tilbud på Vestfoldbanen fra Oslo til Tønsberg i 2025, det blir reisetid med nytt tilbud på 58 min.
Annet
Det er forkjøpsrett for borettslagets medlemmer samt medlemmer av boligbyggelaget Obos. Man må være medlem av Obos for å kunne kjøpe boligen - dersom man ikke er det fra før blir man det automatisk ved budaksept. Innmelding kr.500,- p.t. Alle som skal være eiere må være medlem. Gebyr for å bruke forkjøpsretten utgjør p.t. kr.7.769,-.
PARKERING
Borettslaget har ingen parkeringsplasser. Det kan søkes om beboerparkering hos Tønsberg parkering på nærmere angitte vilkår - se https://www.tbgparkering.no/beboerparkering-i-tonsberg/. Da kan man få tilgang til å parkere rimeligere i kommunale p-områder.
Omkostninger
1 775 922 kr (Prisantydning) 1 307 409 kr (Andel av fellesgjeld) --- 3 083 331 kr (Pris inkl. fellesgjeld) Omkostninger 7 769 kr (Gebyr for å bruke forkjøpsretten) 7 900 kr (HELP boligkjøperforsikring (valgfritt)) 500 kr (Tinglysing av pantedokument) 500 kr (Tinglysing av skjøte) --- 16 669 kr (Omkostninger totalt) --- 3 100 000 kr (Totalpris inkl. omkostninger) NB: Regnestykket forutsetter at det kun tinglyses én låneobligasjon og at eiendommen selges til prisantydning. Det tas forbehold om endringer i offentlige og private gebyrer. Selger er selv ansvarlig for følgende gebyr: 6 385 kr (Eierskiftegebyr) 500 kr (Panterett med urådighet)
Matrikkelinformasjon
Kommunenr: 3905
Gårdsnr: 1002
Bruksnr: 264
Trygg og profesjonell kjøpsprosess
- 1
Møt selger på visning
Du møter selger direkte på visning - den personen som vet hvor sola kommer først inn om morgenen og hvor de beste skiløypene ligger. Få all informasjon fra første hånd og still spørsmål direkte til den som kjenner boligen best.
- 2
Sikker budprosess med BankID
Legg inn bud enkelt og sikkert med BankID-verifisering. Du får SMS-varsler ved nye bud og kan følge budrunden i sanntid. Systemet er mer oversiktlig og lettere å bruke enn tradisjonelle meglersider.
- 3
Profesjonelt oppgjør og overtakelse
Oppgjørsselskap med konsesjon fra Finanstilsynet håndterer alle formelle aspekter. Kontrakt signeres digitalt med BankID, og overtakelsesprotokollen gjennomføres enkelt på telefon. Alt foregår i henhold til avhendingsloven.


Vurderer du å selge selv?
Her kan du sjekke hvordan Propr fungerer - helt uforpliktende.
Ring oss på 23 90 59 00 (9–16, ukedager), eller legg igjen ditt telefonnummer så ringer vi deg opp.
Aktuelt
Kundeservice
Chat: 9–19 på hverdager, 11–18 på søndager
Send e-post: post@propr.no
Ring oss: 23 90 59 00 (10–16, ukedager)