















































































BORGEN / Nær Asker sentrum
Nytt rekkehus fra 2024 | Sentralt og barnevennlig | Solrik hage og takterrasse | Garasje med EL-lader | Rett ved skogen
Prisantydning
Størrelse (BRA)
Internt bruksareal (BRA-I)
Boligtype
Eieform
Antall etasjer
- Byggeår
- 2024
- Felleskost pr mnd
- 3 205 kr
- Kommunale avgifter
- 5 643 kr
- Tomtetype
- Eiet tomt
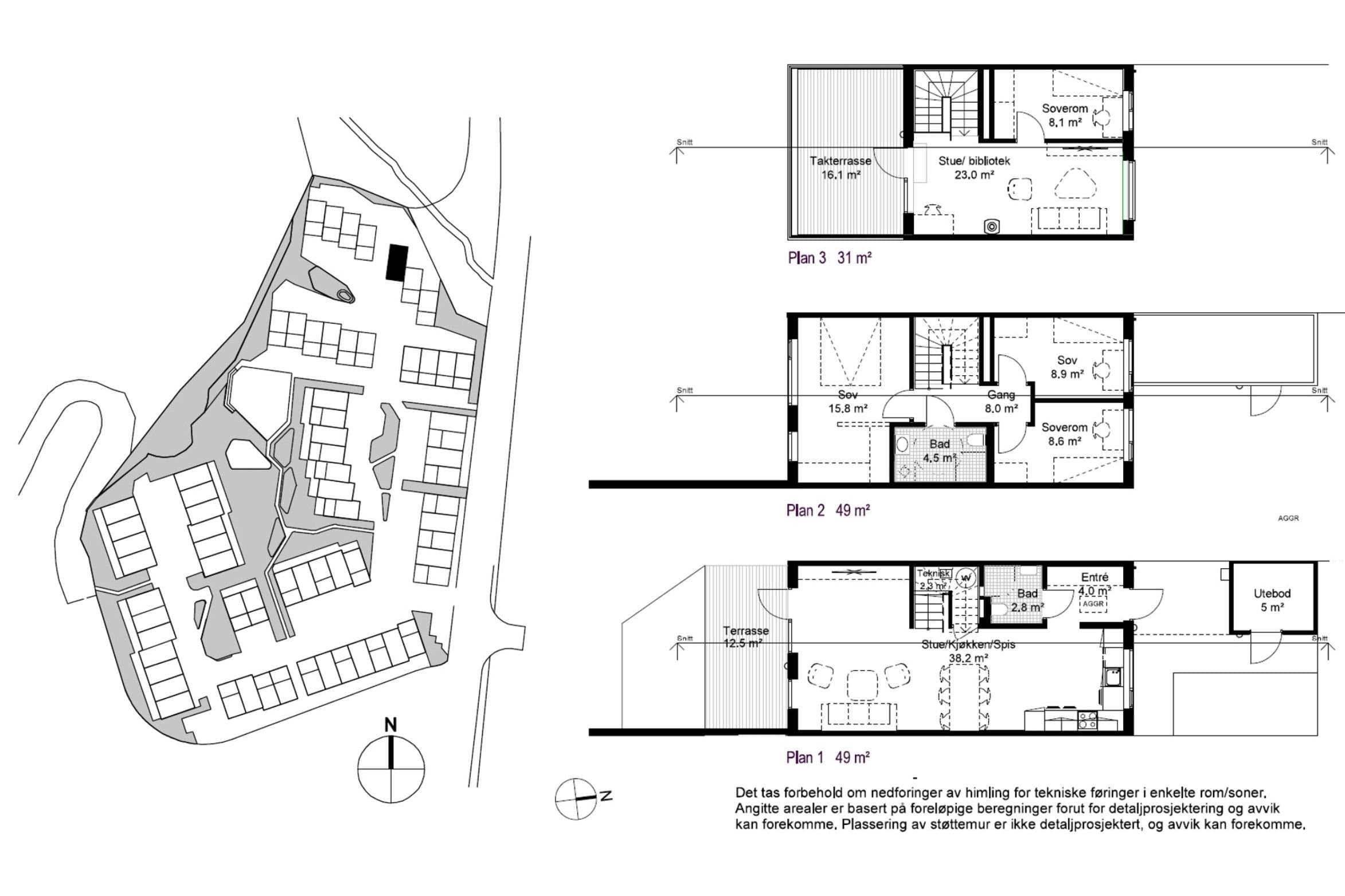
Romtyper
Soverom
Baderom
Stue
Bod
Kjøkken
Om Boligen
Velkommen til et nytt og moderne rekkehus fra 2024 med gjennomgående høy standard. Her bor du i et barnevennlig og rolig område med grønne omgivelser – samtidig som beliggenheten er sentral med kort vei til Asker sentrum, skoler og kollektivtransport. Nøkkel informasjon: • Enderekkehus fra 2024 med nybygg-garanti frem til 2029 • Skjermet beliggenhet innerst i rekken – rett ved skogen • 3 solrike uteplasser – terrasse, takterrasse og inngangsparti • 2 bad, 4 soverom + ekstra stue – plass til hele familien • Garasjeplass med elbillader, mulighet for ekstra plass • Sportsbod og lagring under trapp
Beliggenhet
Boligen har en attraktiv og barnevennlig beliggenhet i et nytt, etablert boligområde med kort vei til alt du trenger i hverdagen: • Ca. 10 minutters gange til Asker togstasjon • Nær Asker sentrum med butikker, servering og kulturtilbud • Kort vei til både offentlige og private barnehager og skoler • Nærområdet byr på golfbane, seilforening, badeplasser og flotte turområder
Standard
Boligen holder en gjennomgående høy standard med moderne materialvalg og gode løsninger for bokomfort: • Elektrisk terrassemarkise • Gulvvarme i hele 1. etasje • Kjøkken fra Sigdal med integrerte hvitevarer fra Siemens • 1-stavs eikeparkett • Balansert ventilasjon med varmegjenvinning • Peisovn som gir ekstra varme og hygge Boligen er i topp teknisk stand – tilstandsrapporten viser kun TG1 (ingen avvik).
Annet
Felleskostnader: De månedlige felleskostnadene utgjør totalt kr 3 205 og fordeler seg slik: Felleskostnader: kr 2 698 TV/internett (grunnpakke): kr 507 Felleskostnadene inkluderer blant annet TV og internett (grunnpakke), garasjeplass, renhold av fellesarealer, felles bygningsforsikring, forretningsførerhonorar samt drift og øvrig vedlikehold. Det tas forbehold om justeringer basert på vedtak i sameiet. Info Kommunale Avgifter: Kommunale avgifter består av både et fastledd og en forbruksbasert del knyttet til vann og avløp. Den årlige kostnaden som er oppgitt i annonsen gjelder fastleddet, og utgjør kr 5 643 (inkl. mva.) per 2025. I tillegg kommer variable kostnader basert på faktisk vannforbruk: -Vann: kr 28,54 + mva. per m³ -Avløp: kr 30,39 + mva. per m³ Tallene er basert på faktura fra Asker kommune for første kvartal 2025. Det tas forbehold om endringer i avgiftene. Parkering: Det medfølger én parkeringsplass med elbillader i felles garasjeanlegg. I tillegg er det etablert ca. 13 gjesteparkeringsplasser i garasjen til bruk for besøkende. Per i dag har flere beboere lagt ut sine parkeringsplasser for salg, og det er dermed gode muligheter for å kjøpe en ekstra plass. Eventuelt kjøp avtales direkte med den enkelte selger i sameiet.
Omkostninger
228 750 kr (Dokumentavgift) 545 kr (Tinglysing av pantedokument) 545 kr (Tinglysing av skjøte) --- 229 840 kr (Omkostninger totalt) --- 9 379 840 kr (Totalpris inkl. omkostninger) NB: Regnestykket forutsetter at det kun tinglyses én låneobligasjon og at eiendommen selges til prisantydning. Det tas forbehold om endringer i offentlige og private gebyrer. Selger er selv ansvarlig for følgende gebyr: 6 570 kr (Eierskiftegebyr) 545 kr (Panterett med urådighet)
Matrikkelinformasjon
Kommunenr: 3203
Gårdsnr: 6
Bruksnr: 64
Trygg og profesjonell kjøpsprosess
- 1
Møt selger på visning
Du møter selger direkte på visning - den personen som vet hvor sola kommer først inn om morgenen og hvor de beste skiløypene ligger. Få all informasjon fra første hånd og still spørsmål direkte til den som kjenner boligen best.
- 2
Sikker budprosess med BankID
Legg inn bud enkelt og sikkert med BankID-verifisering. Du får SMS-varsler ved nye bud og kan følge budrunden i sanntid. Systemet er mer oversiktlig og lettere å bruke enn tradisjonelle meglersider.
- 3
Profesjonelt oppgjør og overtakelse
Oppgjørsselskap med konsesjon fra Finanstilsynet håndterer alle formelle aspekter. Kontrakt signeres digitalt med BankID, og overtakelsesprotokollen gjennomføres enkelt på telefon. Alt foregår i henhold til avhendingsloven.


Vurderer du å selge selv?
Her kan du sjekke hvordan Propr fungerer - helt uforpliktende.
Ring oss på 23 90 59 00 (9–16, ukedager), eller legg igjen ditt telefonnummer så ringer vi deg opp.
Aktuelt
Kundeservice
Chat: 9–19 på hverdager, 11–18 på søndager
Send e-post: post@propr.no
Ring oss: 23 90 59 00 (10–16, ukedager)