















































VIKANES / HAUKØY/OSTERFJORDEN
Bud mottatt. Drømmer du om din egen øy? Nå er det mulig! Pynten kan bli din!
Prisantydning
Størrelse (BRA)
Internt bruksareal (BRA-I)
Boligtype
Eieform
Antall etasjer
- Bruttoareal
- 60 m²
- Byggeår
- 1867
- Tomtetype
- Eiet tomt
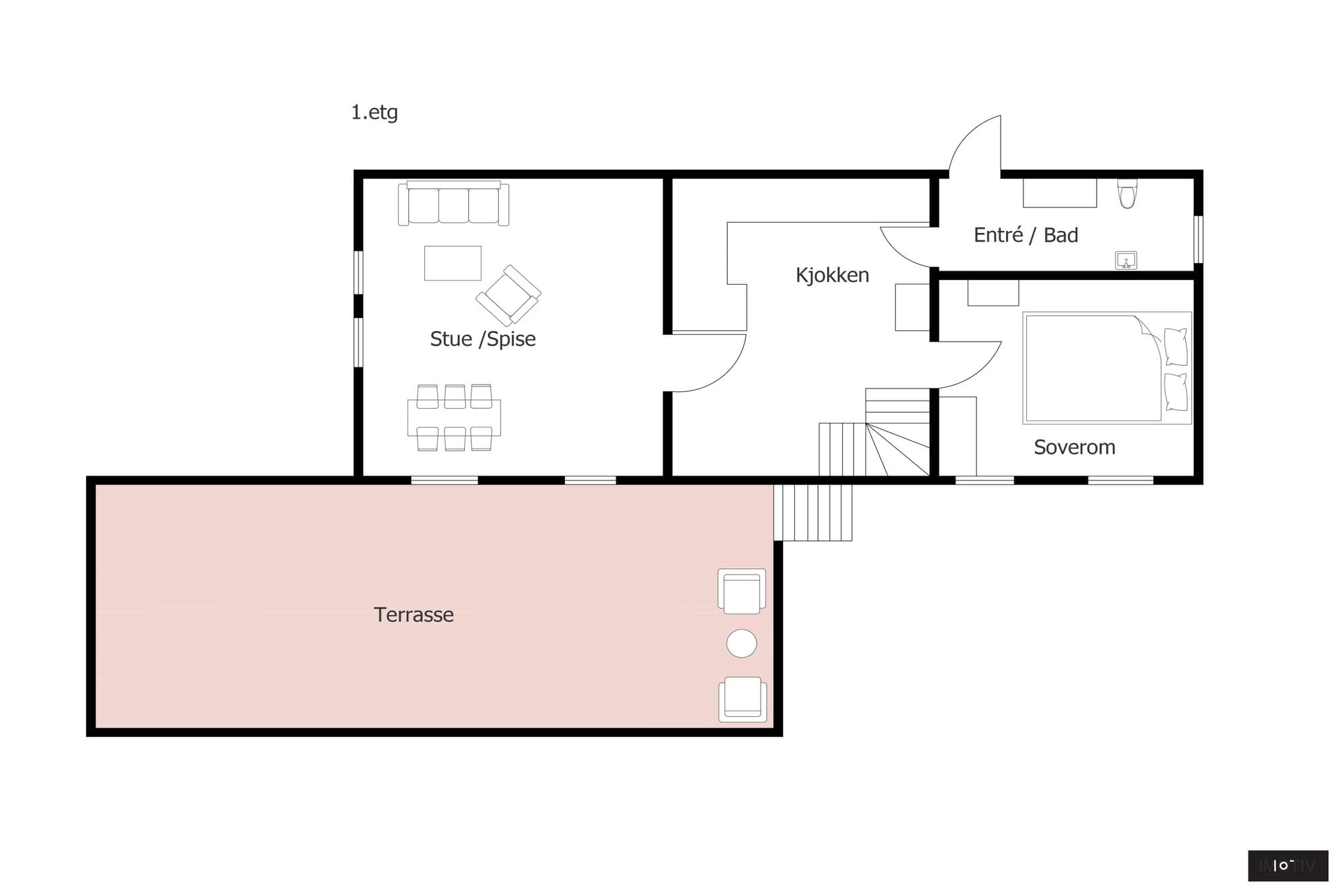
Romtyper
Soverom
Baderom
Stue
Bod
Kjøkken
Visning
Kun etter avtale
Om boligen
Unik mulighet til å sikre deg en sjelden eiendom med mange muligheter. Skap dine egne ferieminner på Pynten eller del med flere. Her er mange muligheter for den rette
Beliggenhet
Eiendommen som er på nesten 200 mål, har et stort potensiale og uante muligheter. Med en skjermet beliggenhet på Haukøy, er Pynten en unik eiendom som tilbyr egen badestrand, fiskemuligheter og turterreng på en gang. Her kan du høste av naturen med både bær og fisk.
Annet
På eiendommen er det et eldre hus som er reist på plassen i 1867. Halve delen av huset et den gamle skjenkestuen fra Ryraneset, en skjenkestue som ble brukt av striler som var på vei til byen i båt, satt opp på nytt på Pynten sammen med resten av huset av Kristian Haukøen i 1867. Eiendommen har opp gjennom årene brødfødd mange mennesker, og ble driftet som et småbruk til opp i 1950 årene. Siden ca midten av 1970-tallet har eiendommen vært brukt som som sommersted. Nå kan dette bli ditt. Overtas som forevist
Om eiendommen
Eiendommen er nesten 200 mål. Her er mye utmark og skog. Kun fantasien setter på begrensning i bruk. På eiendommen er det flere lune viker, egen badestrand, kai og et naust. Her er mye grantre som opprinnelig var tiltenkt brukt for salg som juletre, men i dag gir de le for vær og vind, og skogen på Pynten har bidratt til at det midt på 1980 tallet ble lagt nye gulv i stue og soverom. Overtas slik som vist.
Transport og butikk
Har du egen båt kan du lett komme til Pynten når du vil. Det går skyssbåt fra Vikanes om du ikke har egen båt. Fra Joker på Stammes kan du bestille mat, vippse oppgjør og få mat levert med skyssbåten.
Turterreng
På eiendommen er det flott turterreng. Ta med niste og kaffe og legg ut på ekspedisjon. Når du kommer til toppen av eiendommen får et fantastisk utsikt utover fjorden, til Kleiveland på Osterøy, innover mot Heimvik og videre innover fjorden i retning Romarheim.
Overtagelse
Eiendommen kan overtas omgående
Omkostninger
585 kr (Tinglysingsgebyr skjøte) 585 kr (Tinglysingsgebyr pantedokument) 56 250 kr (Dokumentavgift) 172 kr (Pantattest) 11 500 kr (HELP boligkjøperforsikring (valgfritt)) --- 69 092 kr (Omkostninger totalt) --- 2 319 092 kr (Totalpris inkl. omkostninger) NB: Regnestykket forutsetter at det kun tinglyses en låneobligasjon og at eiendommen selges til prisantydning. Det tas forbehold om endringer i offentlige og private gebyrer. Selger er selv ansvarlig for følgende gebyr: 585 kr (Tinglysingsgebyr sikringsobligasjon)
Matrikkelinformasjon
Kommunenr: 4631
Gårdsnr: 225
Bruksnr: 6
Trygg og profesjonell kjøpsprosess
- 1
Møt selger på visning
Du møter selger direkte på visning - den personen som vet hvor sola kommer først inn om morgenen og hvor de beste skiløypene ligger. Få all informasjon fra første hånd og still spørsmål direkte til den som kjenner boligen best.
- 2
Sikker budprosess med BankID
Legg inn bud enkelt og sikkert med BankID-verifisering. Du får SMS-varsler ved nye bud og kan følge budrunden i sanntid. Systemet er mer oversiktlig og lettere å bruke enn tradisjonelle meglersider.
- 3
Profesjonelt oppgjør og overtakelse
Oppgjørsselskap med konsesjon fra Finanstilsynet håndterer alle formelle aspekter. Kontrakt signeres digitalt med BankID, og overtakelsesprotokollen gjennomføres enkelt på telefon. Alt foregår i henhold til avhendingsloven.


Vurderer du å selge selv?
Her kan du sjekke hvordan Propr fungerer - helt uforpliktende.
Ring oss på 23 90 59 00 (9–16, ukedager), eller legg igjen ditt telefonnummer så ringer vi deg opp.
Aktuelt
Kundeservice
Chat: 9–19 på hverdager, 12–20 på søndager
Send e-post: post@propr.no
Ring oss: 23 90 59 00 (10–16, ukedager)